国土资源

您现在的位置 首页 > 五公开专栏 > 管理公开 > 监管信息公开 > 国土资源

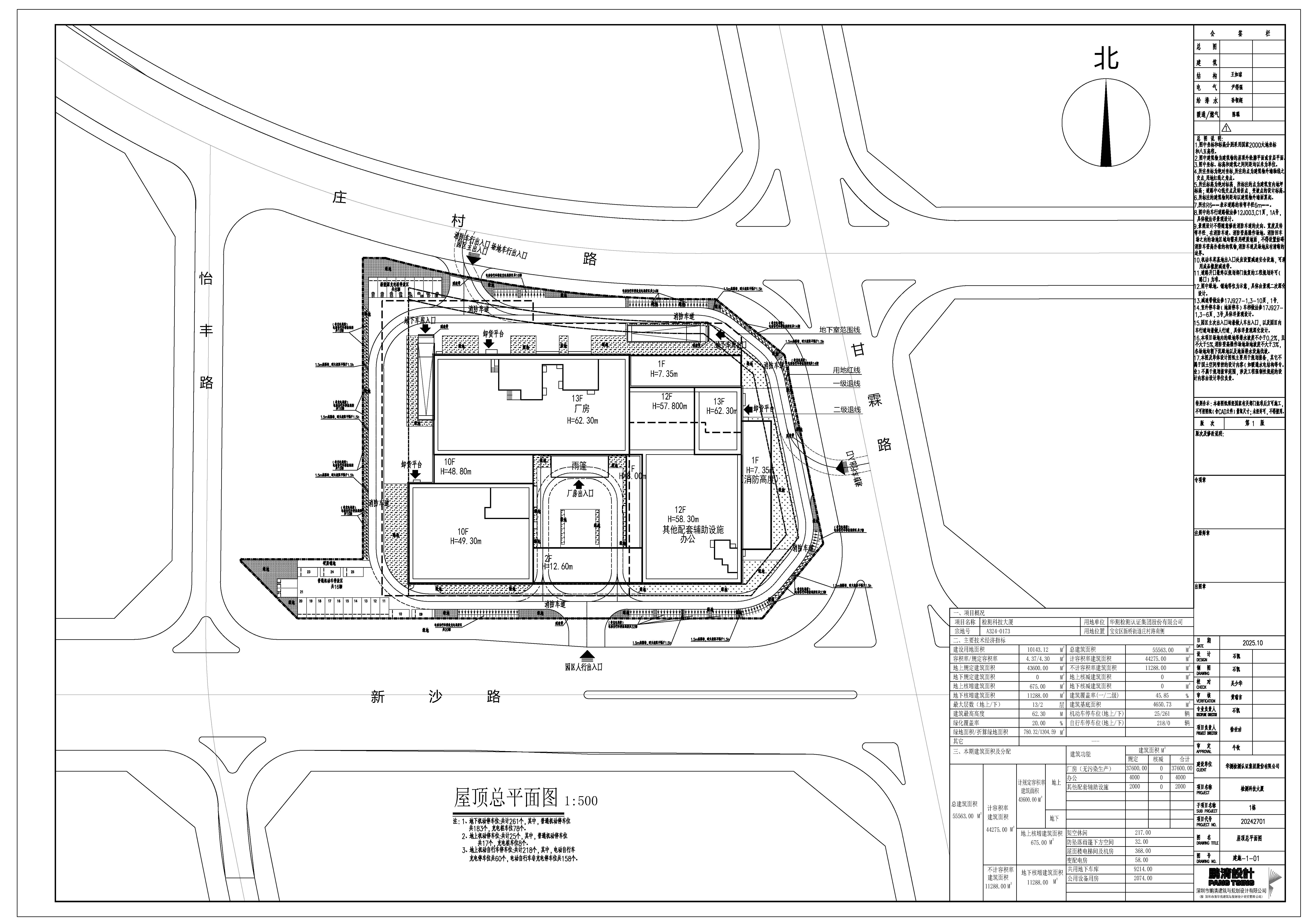
深圳市规划和自然资源局宝安管理局关于公布检测科技大厦项目《建设工程规划许可证》及总平面图的通告

信息来源:深圳市规划和自然资源局 信息提供日期:2025-11-15 09:00 【字体: 视力保护色:

  根据《中华人民共和国城乡规划法》第四十条的规定,我局对检测科技大厦项目的《建设工程规划许可证》及总平面图予以公布,具体内容详见附件。

  附件:1.《建设工程规划许可证》

  2. 总平面图

  深圳市规划和自然资源局宝安管理局

  2025年11月13日

触碰右侧展开