通知公告

您现在的位置 首页 > 政务公开 > 政府信息公开 > 通知公告

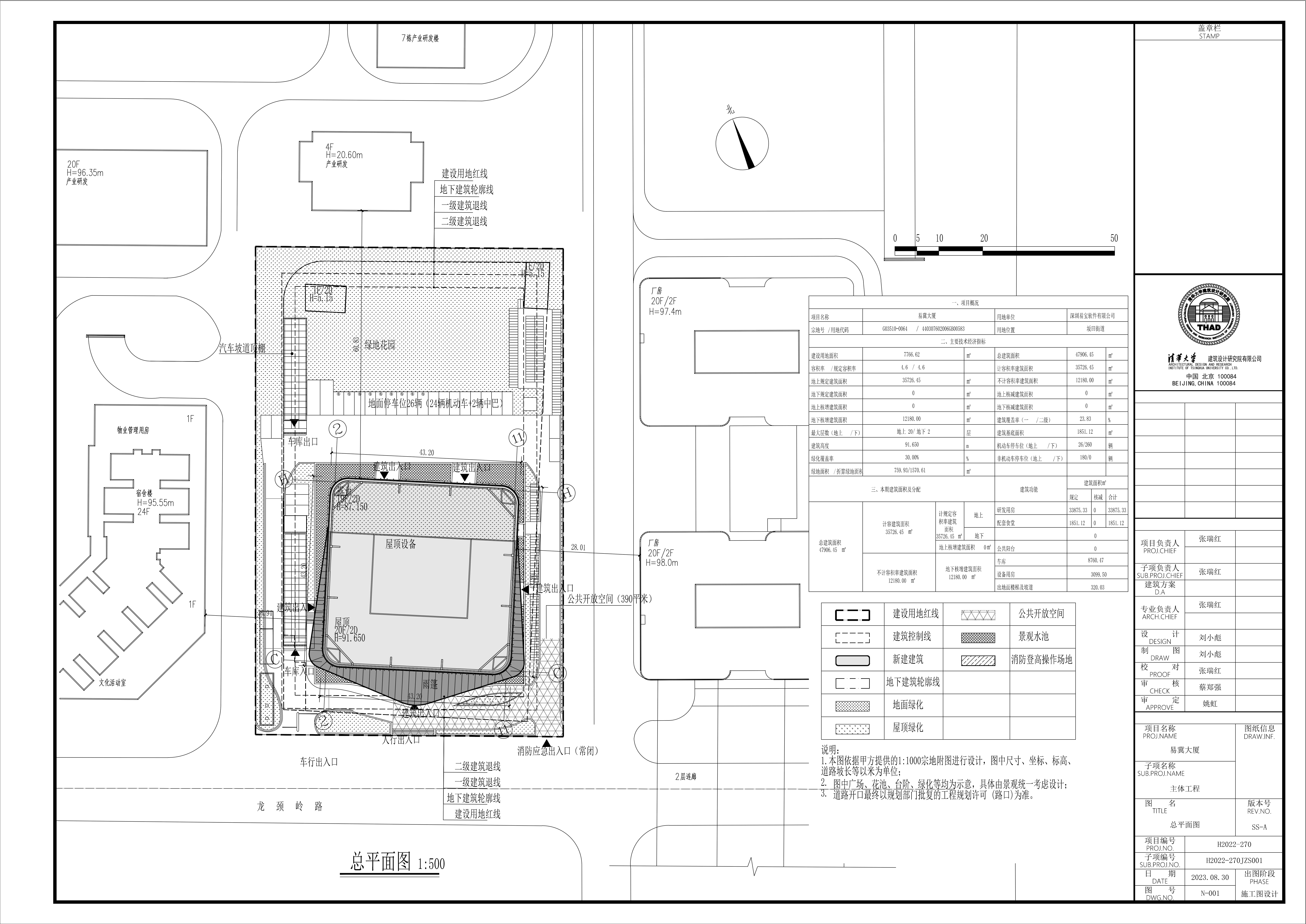
深圳市规划和自然资源局龙岗管理局关于易冀大厦项目总平面图的通告

信息来源:深圳市规划和自然资源局 信息提供日期:2023-09-26 09:00 【字体: 视力保护色:

  深圳易宝软件有限公司来文申请办理易冀大厦项目的建设工程规划许可,现已取得《深圳市建设工程规划许可证》(建字第4403072023GG0038365号)。

  依据《中华人民共和国城乡规划法》相关规定,现对易冀大厦项目总平面图予以公告,对应图纸在市局门户网站公告(公示内容详见附件)。

  特此通告。

  附件:1.项目总平面图

  2.深圳市建设工程规划许可证

深圳市规划和自然资源局龙岗管理局

2023年9月26日

触碰右侧展开