国土资源

您现在的位置 首页 > 五公开专栏 > 管理公开 > 监管信息公开 > 国土资源

深圳市规划和自然资源局龙岗管理局关于宝龙智造园(G02203-0020号宗地)总平面图修改的公示

信息来源:深圳市规划和自然资源局 信息提供日期:2023-08-15 09:00 【字体: 视力保护色:

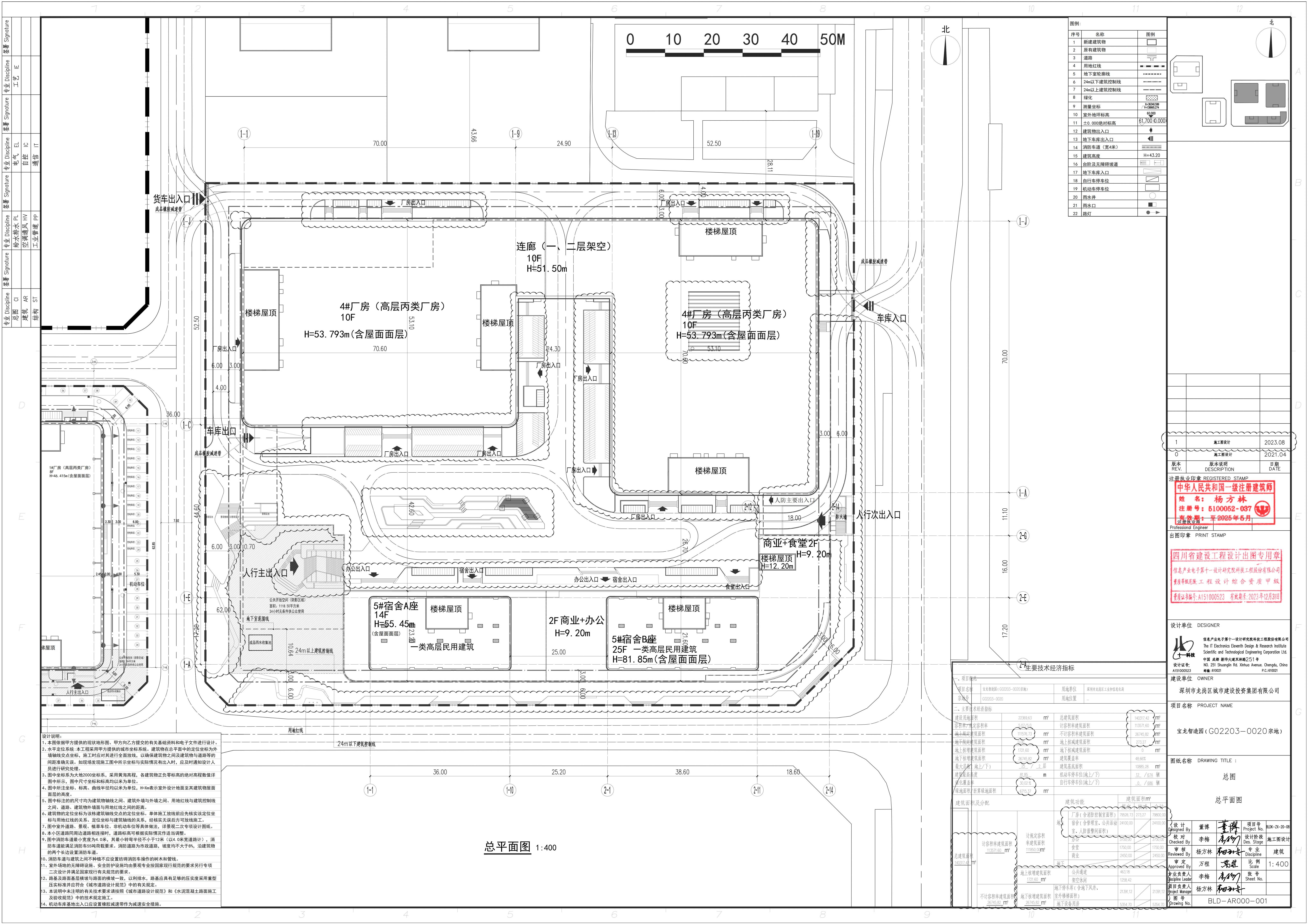
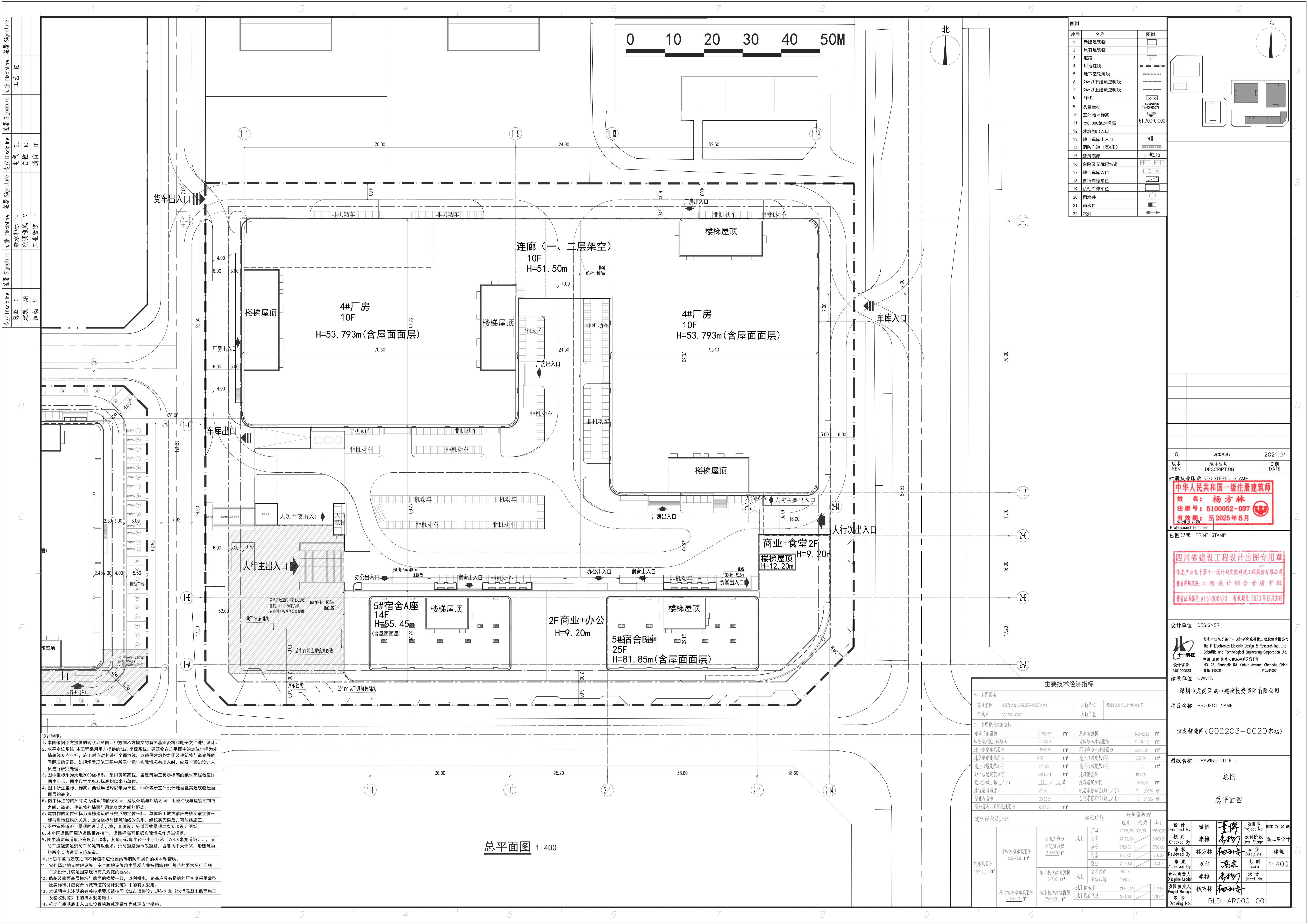
  龙岗区工信局向深圳市规划和自然资源局龙岗管理局申请办理宝龙智造园(G02203-0020号宗地)的建设工程规划许可证变更,本次申请涉及已批总平面图相关内容调整,主要修改内容为:

  1.主要经济技术指标表中相关指标调整、出图日期调整。

  2.厂房首层1-1轴交1-C轴处景观花池布置调整、屋面1-15轴~1-17轴交1-E轴~1-G增加水池。

  3.宿舍1-1轴交1-E轴处室外楼梯布置调整、2-14轴交2-G轴处增加室外景观台阶。

  4.调整厂房与宿舍之间中心花园的布置并增设花架、调整室外景观花池及非机动车位布置。

  以上修改内容详见云线圈注部分,修改后的各项技术指标等仍符合相关规划及规范要求。

  根据《中华人民共和国行政许可法》及《中华人民共和国城乡规划法》的规定,现对该项目的总平面图修改内容予以公示,公示期为10个工作日(2023年8月15日至2023年8月28日),本公示内容和修改前后总平面图同时在深圳市规划和自然资源局网站(http://pnr.sz.gov.cn)、深圳市规划和自然资源局龙岗管理局网站(http://pnr.sz.gov.cn/lg/)及项目现场(龙岗区宝龙街道宝同路与宝龙三路交会处西北侧)一并公示。如对该项目总平面图修改有任何意见和建议,请在公示期内使用真实姓名及联系方式以书面形式反馈至深圳市规划和自然资源局龙岗管理局(地址:龙岗区中心城行政路2号建设大厦)。公示期满无异议,深圳市规划和自然资源局龙岗管理局将按规定办理批准手续。

  特此公示。

  附件:1.总平面图(修改前)

  2.总平面图(修改后)

深圳市规划和自然资源局龙岗管理局

2023年8月15日

  (联系人:张工,联系电话:0755-28918619)

触碰右侧展开