重大政策决策

您现在的位置 首页 > 五公开专栏 > 决策公开 > 决策预公开 > 重大政策决策

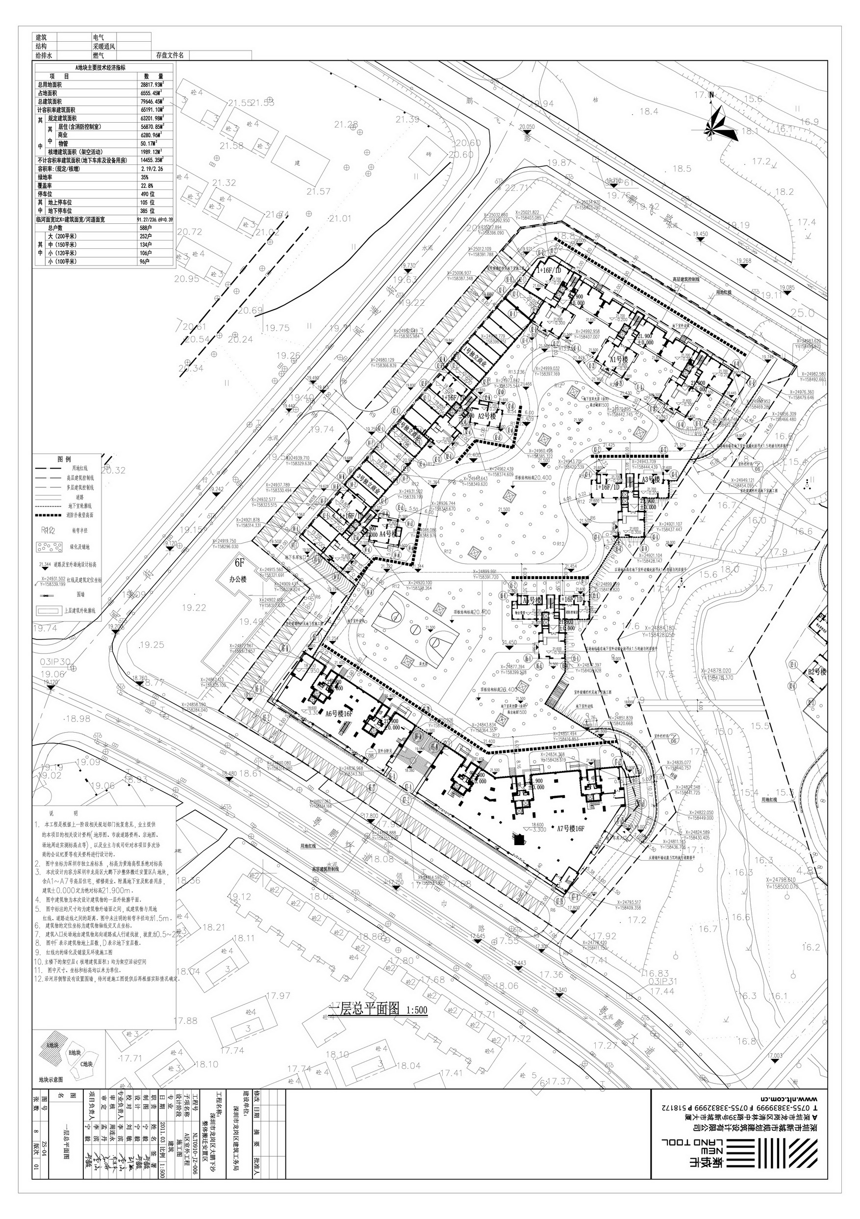
关于公布大鹏新区大鹏下沙村潮歌苑、金沙苑和山海苑三项目总平面图的通告

信息来源:深圳市规划和国土资源委员会(市海洋局) 信息提供日期:2013-06-28 10:24 【字体: 视力保护色:

  深圳市大鹏新区大鹏下沙村潮歌苑、金沙苑和山海苑三项目位于大鹏新区大鹏办事处王母社区,其中大鹏下沙村潮歌苑宗地号G16506-0005,用地面积28817.93㎡,允许建设计容积率建筑面积63400㎡(居住57010㎡、商业6340㎡、物管50㎡);大鹏下沙村金沙苑宗地号G16506-0006,用地面积13851.56㎡,允许建设计容积率建筑面积30470㎡(住宅30420㎡、物管50㎡);大鹏下沙村山海苑宗地号G16506-0009,用地面积24563.58㎡,允许建设计容积率建筑面积49130㎡(住宅46600㎡、独立占地2700㎡的幼儿园2400㎡、物业管理50㎡、垃圾站80㎡)。

  经市规土委滨海管理局审查,同意核发上述三项目《建设工程规划许可证》(深规土建许字BH-2013-0011、BH-2013-0012和BH-2013-0013号)。根据《中华人民共和国城乡规划法》第四十条的规定,现将本次审定的总平面图予以公布。

  本通告内容及总平面图具体内容同时在深圳市规划和国土资源委员会网站(http://www.szpl.gov.cn)予以公布。

  深圳市规划和国土资源委员会滨海管理局

  2013年6月28日

触碰右侧展开