重大政策决策

您现在的位置 首页 > 五公开专栏 > 决策公开 > 决策预公开 > 重大政策决策

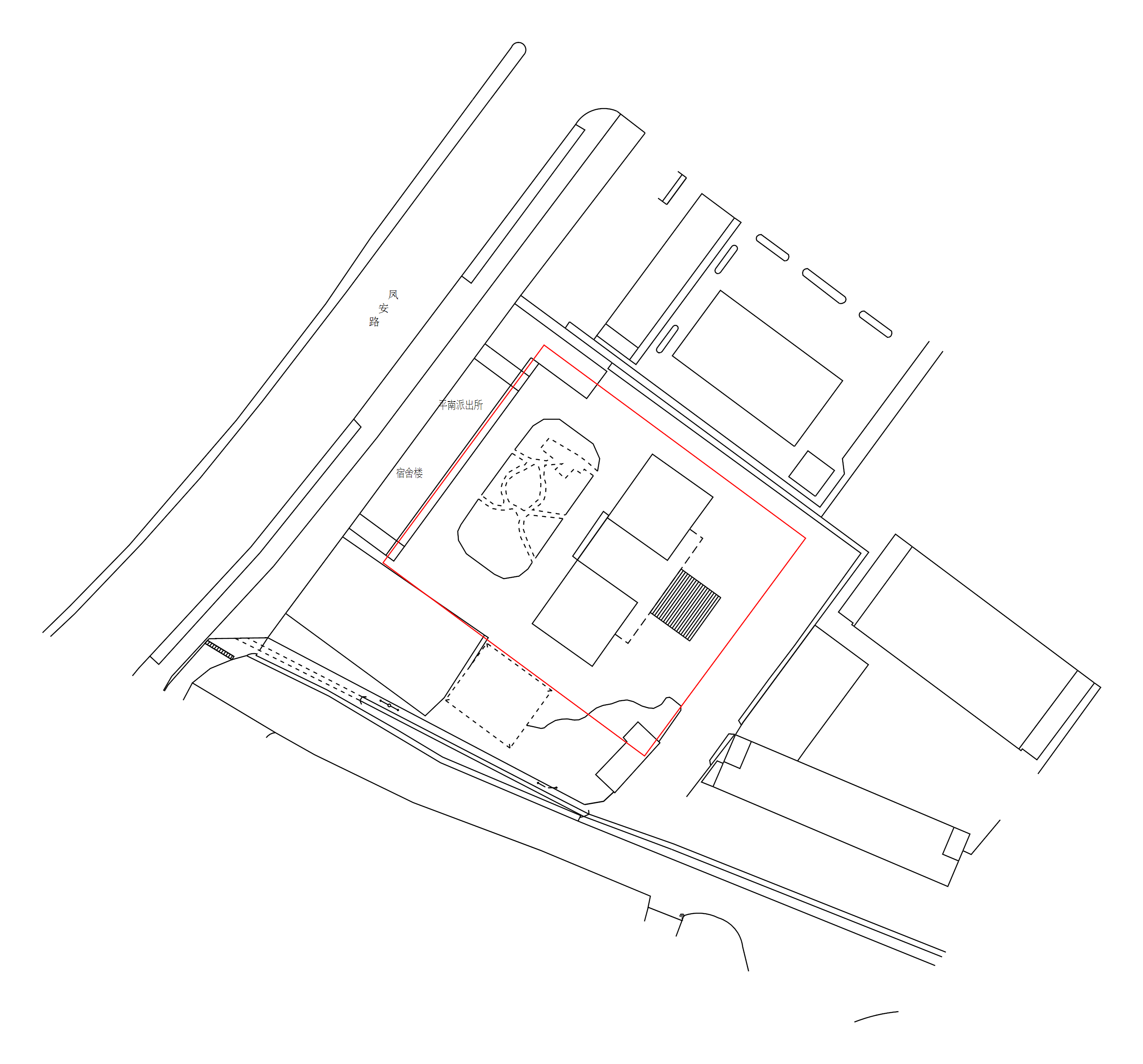
深圳市规划和自然资源局龙岗管理局关于深圳市公安局平南派出所规划确认的公示

信息来源:深圳市规划和自然资源局 信息提供日期:2024-11-13 09:00 【字体: 视力保护色:

  近日,我局受理了深圳市公安局平南派出所规划确认事宜的申请,根据《广东省城乡规划条例》《关于加强房地产登记历史遗留问题处理工作的若干意见》(深府〔2010〕66号)等相关规定,现将本次规划确认内容予以公示,具体内容如下:

  一、规划确认内容

  该项目位于龙岗区平湖街道东门路208号,拟规划确认1栋办公楼,地上6层,总建筑面积3272.94平方米,均为规定建筑面积。

  二、公示时间

  公示期为10个自然日(2024年11月13日至2024年11月22日)。

  三、公示地点

  (一)深圳市规划和自然资源局龙岗管理局

  地址:龙岗区龙城街道行政路2号建设大厦一楼大厅;

  (二)项目现场

  地址:龙岗区平湖街道东门路208号;

  (三)网上展示

  1.深圳市规划和自然资源局网站

  网址:http://pnr.sz.gov.cn;

  2.深圳市规划和自然资源局龙岗管理局网站

  网址:http://pnr.sz.gov.cn/lg/。

  四、意见反馈

  公示期间如对该事项有意见或建议,请使用真实姓名及有效联系方式将意见通过邮寄或电子邮件反馈:

  (一)邮寄。邮寄地址:深圳市龙岗区龙城街道行政路2号建设大厦812室;收件人:建筑设计科1105室,黄工;联系电话:0755-28918900;并在信封上注明“深圳市公安局平南派出所公示意见”字样(日期以邮戳为准)。

  (二)电子邮件。请将意见发至邮箱:laishh@pnr.sz.gov.cn,邮件标题请按“深圳市公安局平南派出所公示意见+姓名(或单位名称)”格式填写。

  公众意见征询截止日期为2024年11月22日。深圳市规划和自然资源局龙岗管理局将按相关规定对公众意见进行研究和处理。

  特此公示。

  附件:深圳市公安局平南派出所总平面图

  深圳市规划和自然资源局龙岗管理局

  2024年11月13日

触碰右侧展开