重大政策决策

您现在的位置 首页 > 五公开专栏 > 决策公开 > 决策预公开 > 重大政策决策

深圳市规划和自然资源局龙岗管理局关于颐安智汇大厦项目总平面图修改事宜的公示

信息来源:深圳市规划和自然资源局 信息提供日期:2024-09-09 09:00 【字体: 视力保护色:

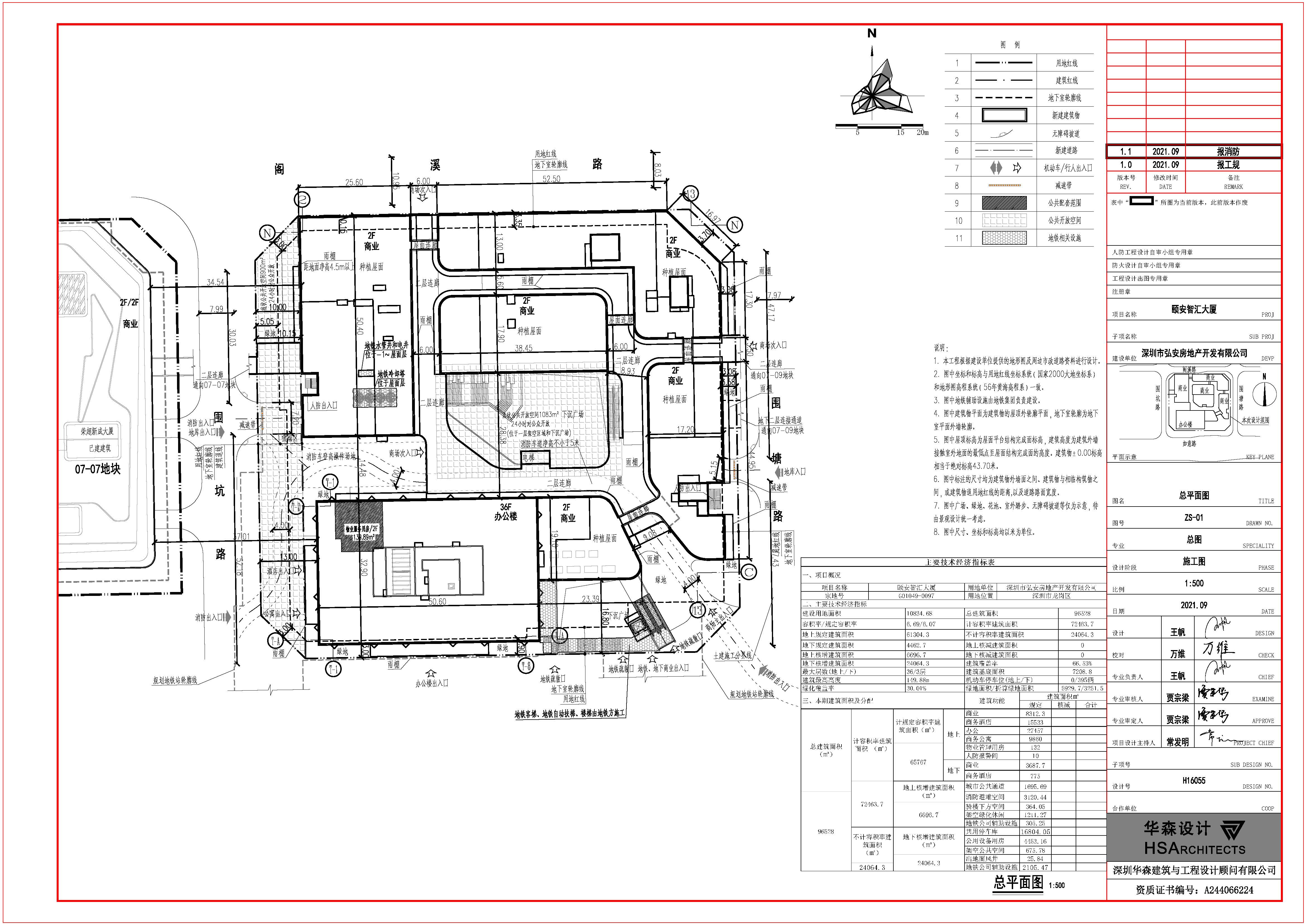
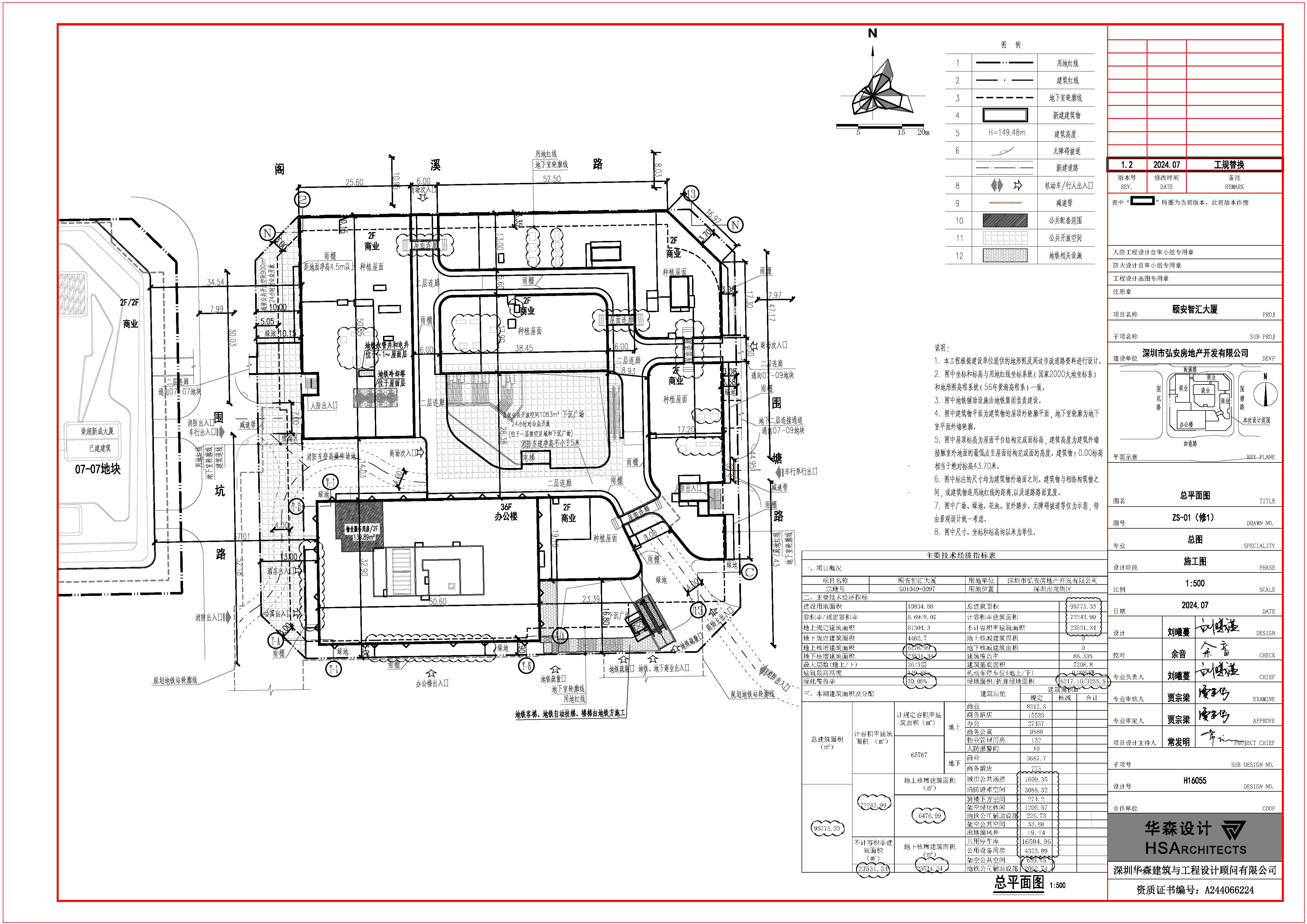
  深圳市弘安房地产开发有限公司向我局申请办理颐安智汇大厦项目(G01049-0097号宗地)的建设工程规划许可证变更,该项目位于龙岗区龙城街道体育新城,于2021年11月9日取得(深规划资源建许字LG-2021-0144号)《建设工程规划许可证》,本次申请修改内容涉及已批总平面图相关内容调整(详见云线圈注部分)。

  一、主要修改内容

  (一)经济技术指标表数据调整,修改后各项指标均符合相关规划要求。

  (二)裙房屋顶连廊增加踏步、增加事故排风井、修改设备基础位置。

  (三)办公、公寓、酒店大堂出入口处雨棚范围修改。

  二、公示时间

  现根据《中华人民共和国城乡规划法》相关规定予以公示,公示期为10个工作日(2024年9月9日至2024年9月23日)。

  三、公示地点

  (一)深圳市规划和自然资源局龙岗管理局

  地址:龙岗区龙城街道行政路2号建设大厦一楼大厅

  (二)项目现场

  地址:龙岗区龙城街道颐安智汇大厦项目现场大门

  (三)网上展示

  1.深圳市规划和自然资源局网站

  网址:http://pnr.sz.gov.cn

  2.深圳市规划和自然资源局龙岗管理局网站

  网址:http://pnr.sz.gov.cn/lg/

  四、意见反馈

  公示期间如对该事项有意见或建议,请使用真实姓名及有效联系方式将意见通过邮寄或电子邮件反馈:

  (一)邮寄。邮寄地址:深圳市龙岗区龙城街道行政路2号建设大厦812室;收件人:建筑设计科1105室,吴工;联系电话:0755-28918132;并在信封上注明“颐安智汇大厦项目公示意见”字样(日期以邮戳为准)。

  (二)电子邮件。请将书面意见扫描后发至邮箱:laishh@pnr.sz.gov.cn,邮件标题请按“颐安智汇大厦项目公示意见+姓名(或单位名称)”格式填写。

  公众意见征询截止日期为2024年9月23日。深圳市规划和自然资源局龙岗管理局将按相关规定对公众意见进行研究和处理。

  特此公示。

  附件:1.修改前总平面图

  2.修改后总平面图

  深圳市规划和自然资源局龙岗管理局

  2024年9月9日

触碰右侧展开