重大政策决策

您现在的位置 首页 > 五公开专栏 > 决策公开 > 决策预公开 > 重大政策决策

深圳市规划和自然资源局龙岗管理局关于变更东方嘉盛智慧仓项目总平面图的公示

信息来源:深圳市规划和自然资源局 信息提供日期:2023-08-24 09:00 【字体: 视力保护色:

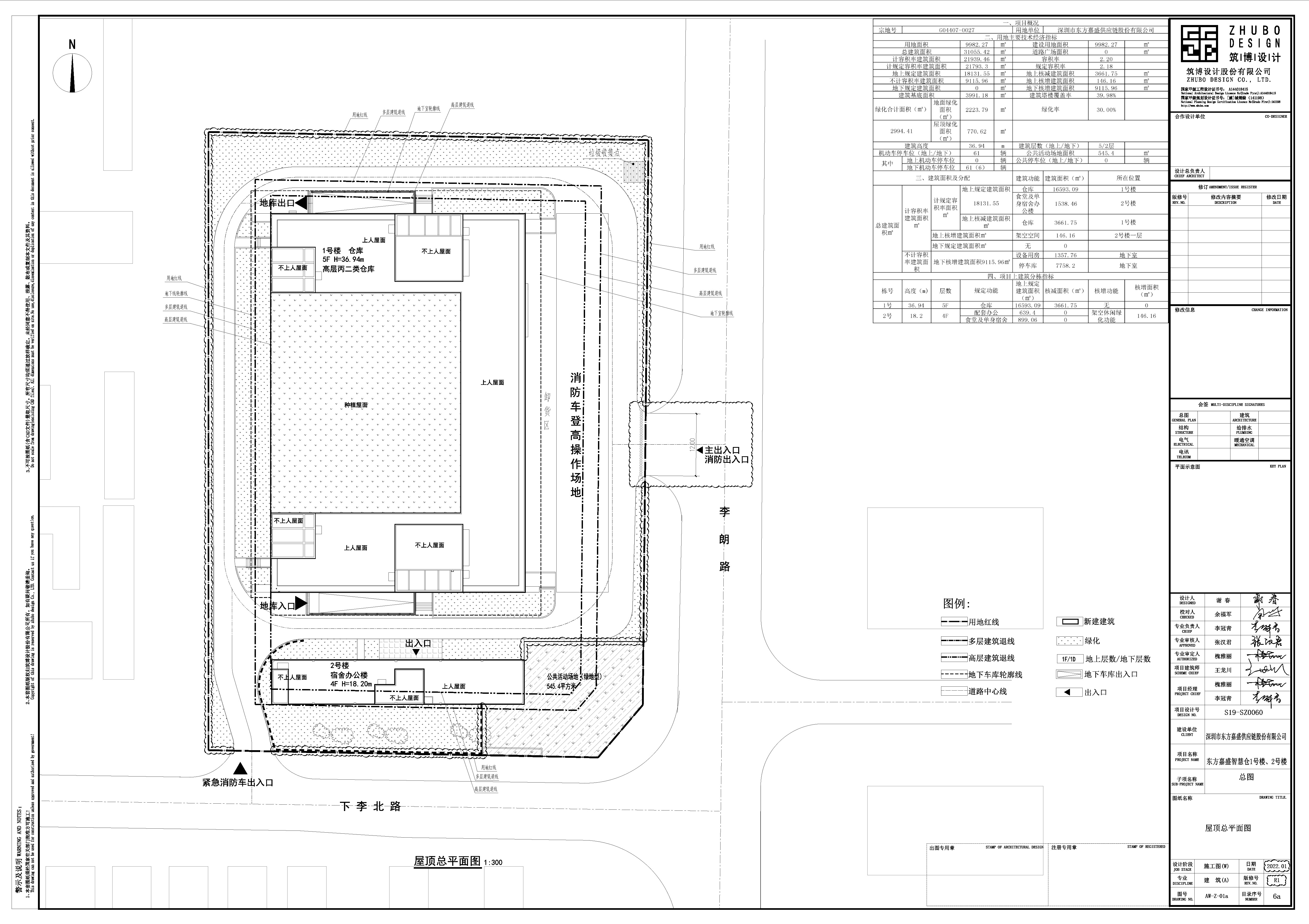
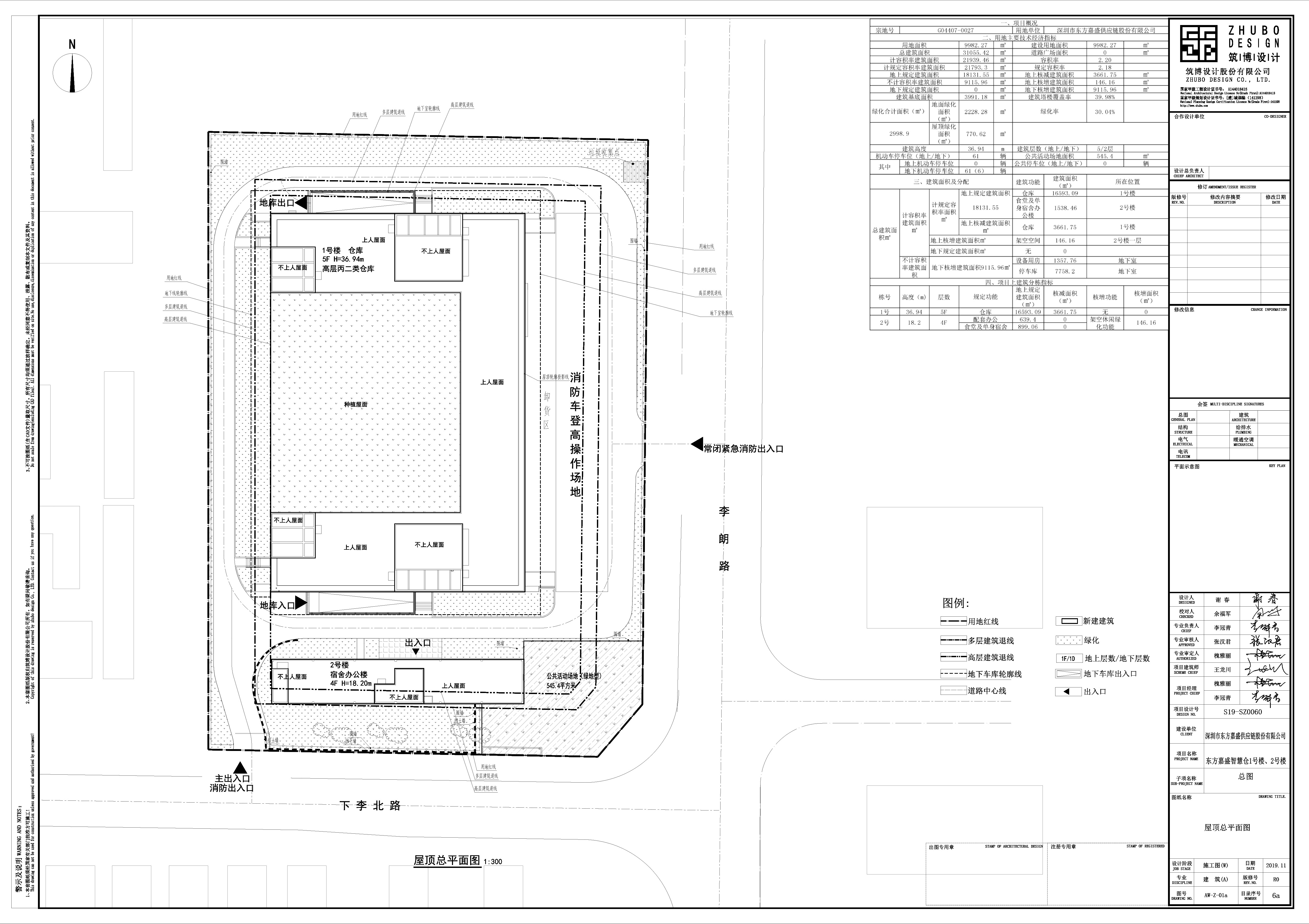
  深圳市东方嘉盛供应链股份有限公司来文申请东方嘉盛智慧仓项目建设工程设计文件修改备案,项目用地位于南湾街道,宗地号G04407-0027,用地面积9982.27平方米,于2020年11月取得深规划资源建许字LG-2020-0087号《建设工程规划许可证》。本次总平面图变更内容为:将该项目用地东侧临李朗路出入口宽度由8米修改为12米,厂区围墙取消等,详见图纸云线圈注部分。修改后的各项规划指标等仍符合《建设用地规划许可证》《土地使用权出让合同书》及相关规范规定要求。

  根据《中华人民共和国行政许可法》第四十七条及《中华人民共和国城乡规划法》第五十条的规定,现对该项目总平面图修改予以公示。公示期10个工作日(自2023年8月24日起至2023年9月6日止)。公示期间,如对该项目总平面图修改有任何意见和建议,请使用真实姓名及联系方式以书面形式反馈至深圳市规划和自然资源局龙岗管理局(地址:深圳市龙岗区中心城行政路2号建设大厦1105室)。公示期满如无异议,将按规定办理相关手续。

  本公示自发布之日起,在深圳市规划和自然资源局网站(http://pnr.sz.gov.cn)、深圳市规划和自然资源局龙岗管理局一楼大厅和网站(http://pnr.sz.gov.cn/lg)及项目现场同时进行展示。

  特此公示。

  附件:1.原报建总平面图

  2.修改后总平面图

深圳市规划和自然资源局龙岗管理局

2023年8月24日

  (联系人:刘工,联系电话:0755-28906020,传真:0755-28920300)

触碰右侧展开