国土资源

您现在的位置 首页 > 五公开专栏 > 管理公开 > 监管信息公开 > 国土资源

深圳市规划和自然资源局龙岗管理局关于御景荟都(G02112-0008)项目的总平面图变更的公示

信息来源:深圳市规划和自然资源局 信息提供日期:2022-04-08 09:00 【字体: 视力保护色:

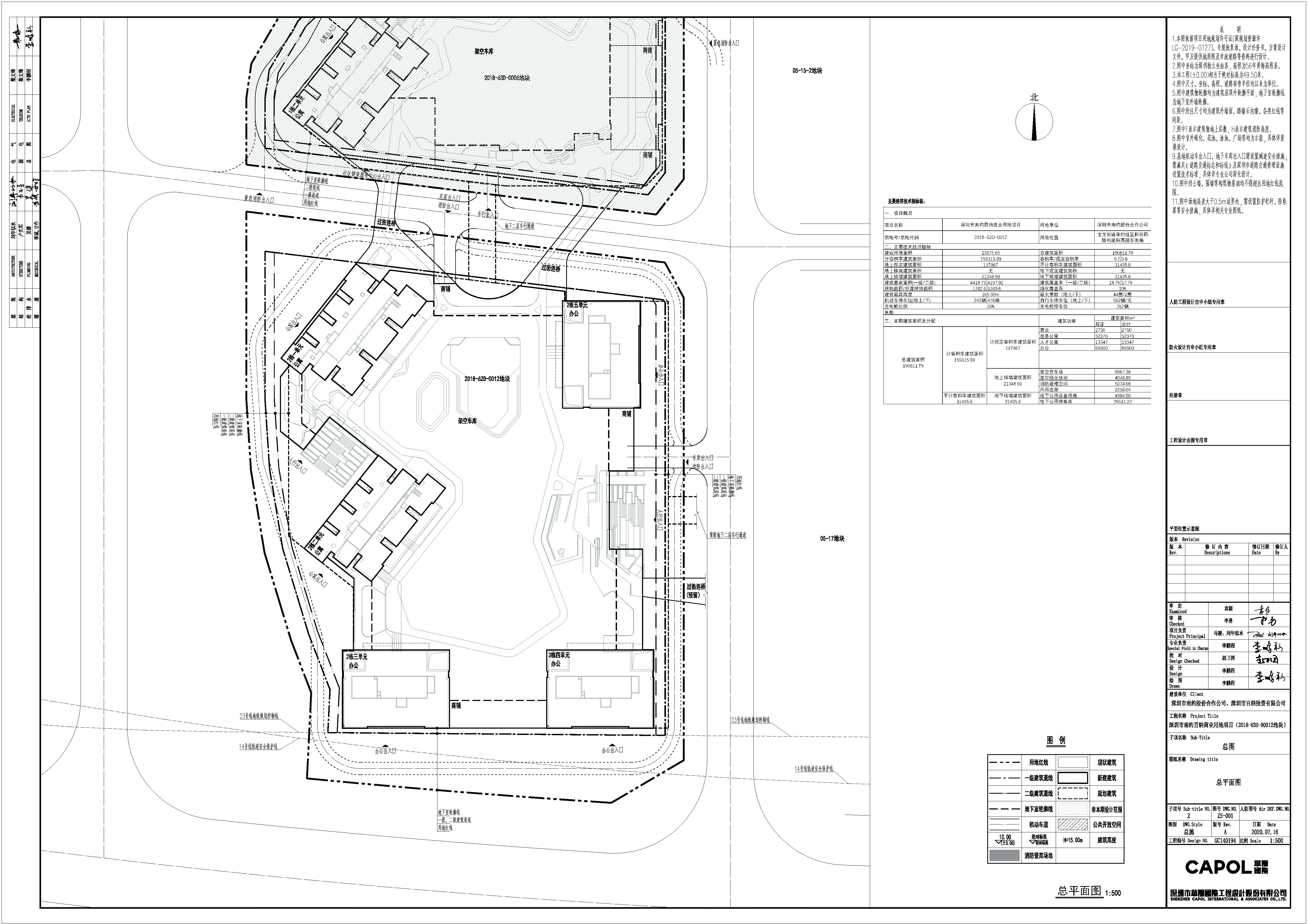
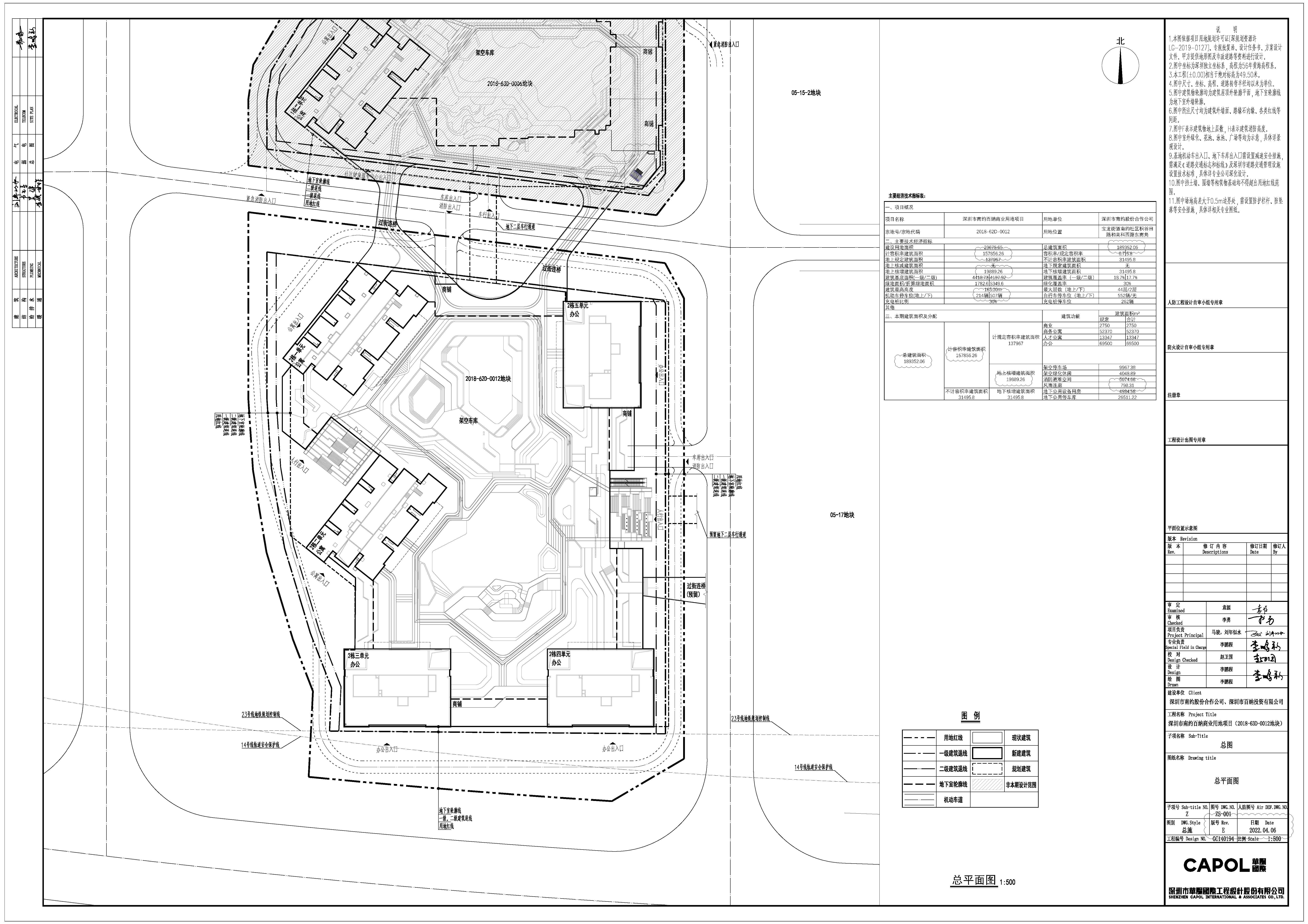
  2022年4月深圳市规划和自然资源局龙岗管理局受理了深圳市百纳投资有限公司御景荟都(G02112-0008)项目的变更建设工程规划许可的申请。本次申请涉及《建设工程规划许可证》中总图的变更,根据《中华人民共和国城乡规划法》《深圳市建设工程规划许可(房建类)报建文件编制技术规定》《中华人民共和国行政许可法》的要求,现对该项目总平面修改予以公示,本次修改主要内容为更新主要技术经济指标表。

  以上变更内容详见修改后总平面图中云线圈注部分。本次公示时间为10个工作日(自2022年4月8日起至2022年4月21日止),自发布之日起在深圳市规划和自然资源局网站(http://pnr.sz.gov.cn)、龙岗管理局一楼大厅(地址:深圳市龙岗区中心城行政路2号建设大厦)及项目现场(地址:龙岗区宝龙街道南约社区)同时进行展示。公示期间如对该项目总平面图修改有任何意见和建议,请使用真实姓名及联系方式以书面形式反馈至深圳市规划和自然资源局龙岗管理局(地址:深圳市龙岗区中心城行政路2号建设大厦1101室)。公示期满如无异议,将按规定办理相关手续。

  特此公示。

  附件:1.修改前的总平面图

  2.修改后的总平面图

深圳市规划和自然资源局龙岗管理局

2022年4月8日

  (联系人:曾工;联系电话:0755-28918900)

触碰右侧展开