国土资源

您现在的位置 首页 > 五公开专栏 > 管理公开 > 监管信息公开 > 国土资源

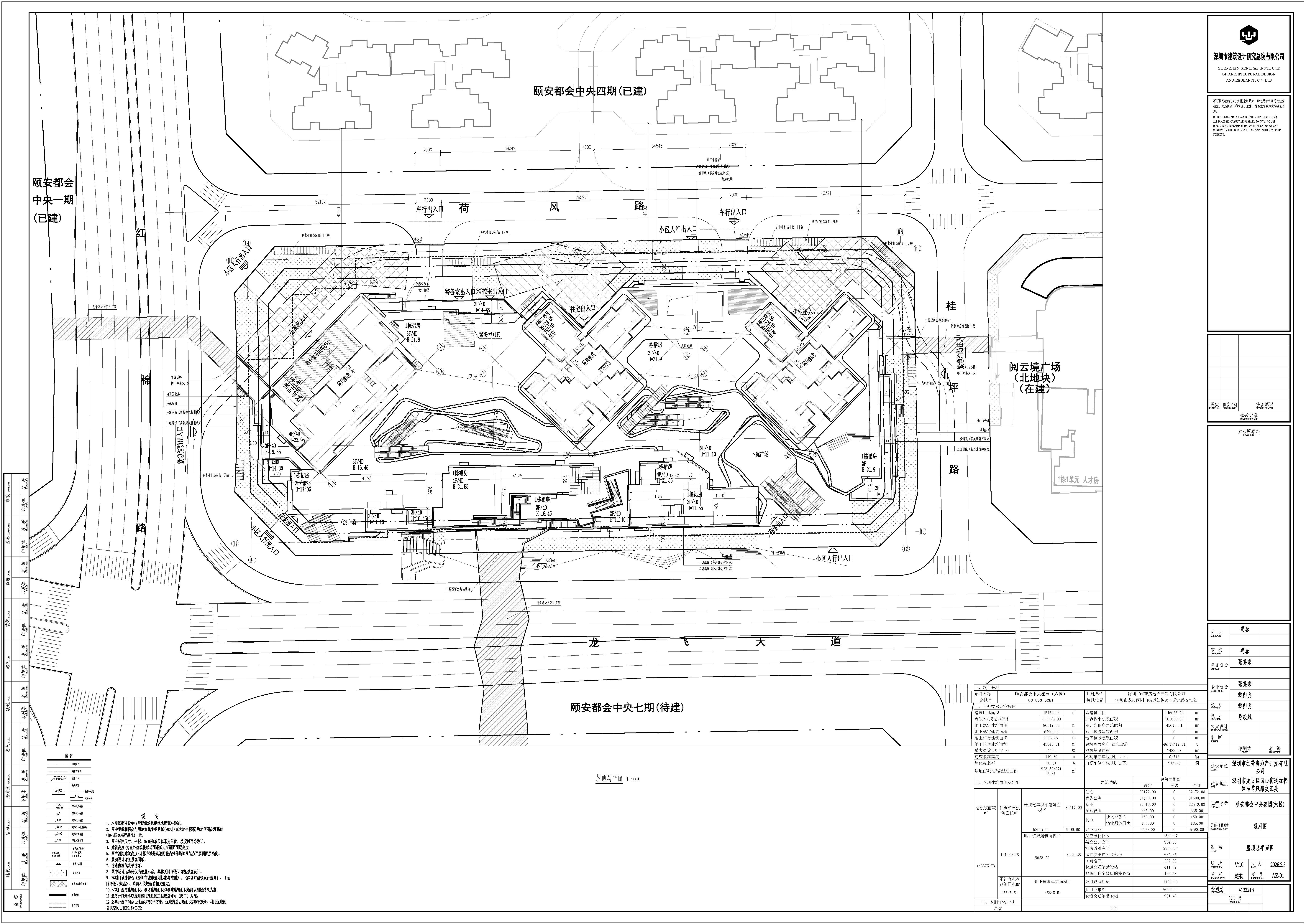
深圳市规划和自然资源局龙岗管理局关于公布颐安都会中央花园(六区)[G01063-0261]项目《建设工程规划许可证》及总平面图的通告

信息来源:深圳市规划和自然资源局 信息提供日期:2026-02-26 18:02 【字体: 视力保护色:

  颐安都会中央花园(六区)[G01063-0261]项目用地位于龙岗区园山街道红棉路与荷风路交会处,宗地号为G01063-0261。经审查,我局同意核发该项目的《建设工程规划许可证》。

  根据《中华人民共和国城乡规划法》相关规定,现将本次核发的《建设工程规划许可证》及总平面图予以公布。

  特此通告。

  附件:1.建设工程规划许可证

  2.建设工程设计文件核查表

  3.项目总平面图

  深圳市规划和自然资源局龙岗管理局

  2026年2月26日

触碰右侧展开