国土资源

您现在的位置 首页 > 五公开专栏 > 管理公开 > 监管信息公开 > 国土资源

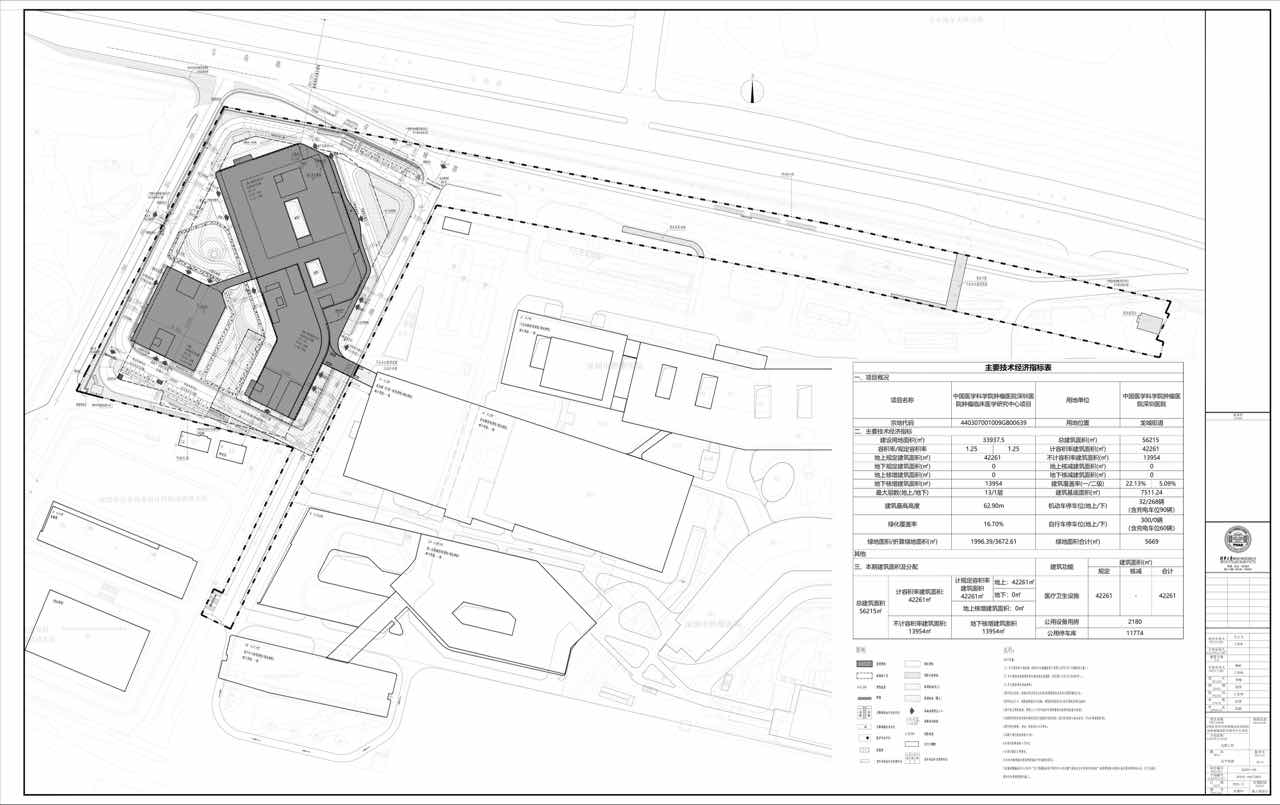
深圳市规划和自然资源局龙岗管理局关于中国医学科学院肿瘤医院深圳医院肿瘤临床医学研究中心项目总平面图的公示

信息来源:深圳市规划和自然资源局 信息提供日期:2026-02-11 15:26 【字体: 视力保护色:

  中国医学科学院肿瘤医院深圳医院肿瘤临床医学研究中心项目用地位于龙岗区龙城街道宝荷路南侧,宗地号为:G02101-0445,现深圳市卫生健康委员会向我局申请办理该项目的《建设工程规划许可证》核发事宜,根据《广东省城乡规划条例》等相关规定,现将有关事项公示如下:

  一、公示内容

  中国医学科学院肿瘤医院深圳医院肿瘤临床医学研究中心项目总平面图(详见附件)

  二、公示时间

  2026年2月12日至2026年2月21日(10个自然日)。

  三、公示渠道

  (一)网上公示

  1.深圳市规划和自然资源局门户网站

  http://pnr.sz.gov.cn/

  2.深圳市规划和自然资源局龙岗管理局门户网站

  http://pnr.sz.gov.cn/lg/

  (二)实地公示

  1.深圳市规划和自然资源局龙岗管理局

  地址:深圳市龙岗区行政路2号

  2.中国医学科学院肿瘤医院深圳医院

  地址:龙岗区龙城街道宝荷路南侧

  四、意见反馈方式

  公示期间,任何单位、组织和个人均可就公示内容提出书面意见或建议,个人提交反馈意见的应当提供真实姓名(须由提交人签名)、有效身份证明复印件、住址及联系方式,单位或组织提交反馈意见的应当加盖公章、提交单位法定代表人、委托代理人的有效身份证明复印件并注明联系人及联系方式。请通过以下渠道书面反馈:

  (一)邮寄。邮寄地址:深圳市龙岗区龙城街道行政路2号建设大厦812室;收件人:建筑设计科1105室,王工;联系电话:0755-28918629;并在信封上注明“中国医学科学院肿瘤医院深圳医院肿瘤临床医学研究中心项目公示意见”字样(日期以邮戳为准)。

  (二)电子邮件。请将意见发至邮箱:laishh@pnr.sz.gov.cn,邮件标题请按“中国医学科学院肿瘤医院深圳医院肿瘤临床医学研究中心项目公示意见+姓名(或单位名称)”格式填写。

  公众意见征询截止日期为2026年2月21日,我局将按照相关规定对公众意见进行认真研究和处理后,按程序审批。

  特此公示。

  附件:项目总平面图

  深圳市规划和自然资源局龙岗管理局

  2026年2月11日

触碰右侧展开