国土资源

您现在的位置 首页 > 五公开专栏 > 管理公开 > 监管信息公开 > 国土资源

深圳市规划和自然资源局龙岗管理局关于正弘青云筑项目总平面图修改的公示

信息来源:深圳市规划和自然资源局 信息提供日期:2025-11-11 11:32 【字体: 视力保护色:

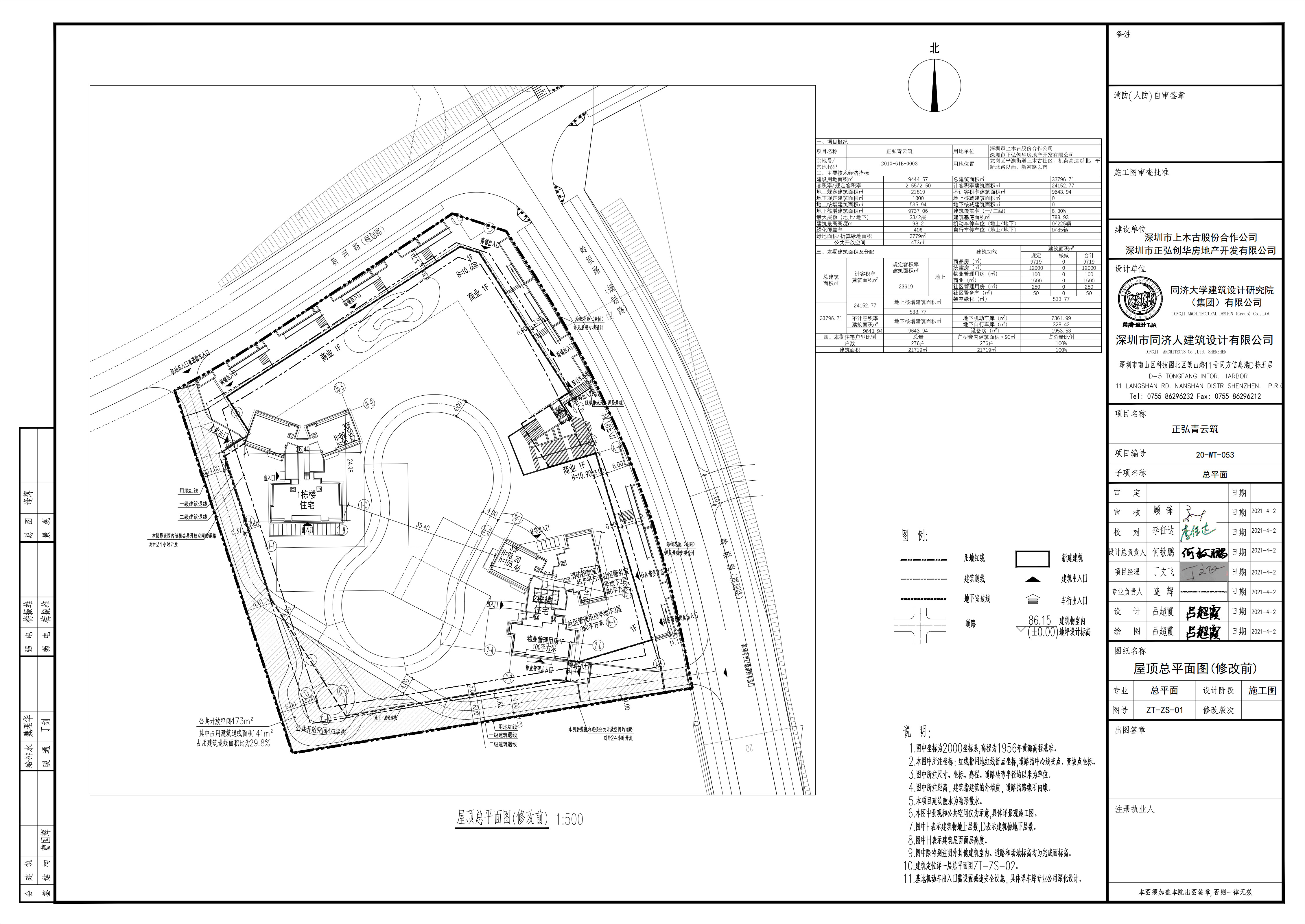
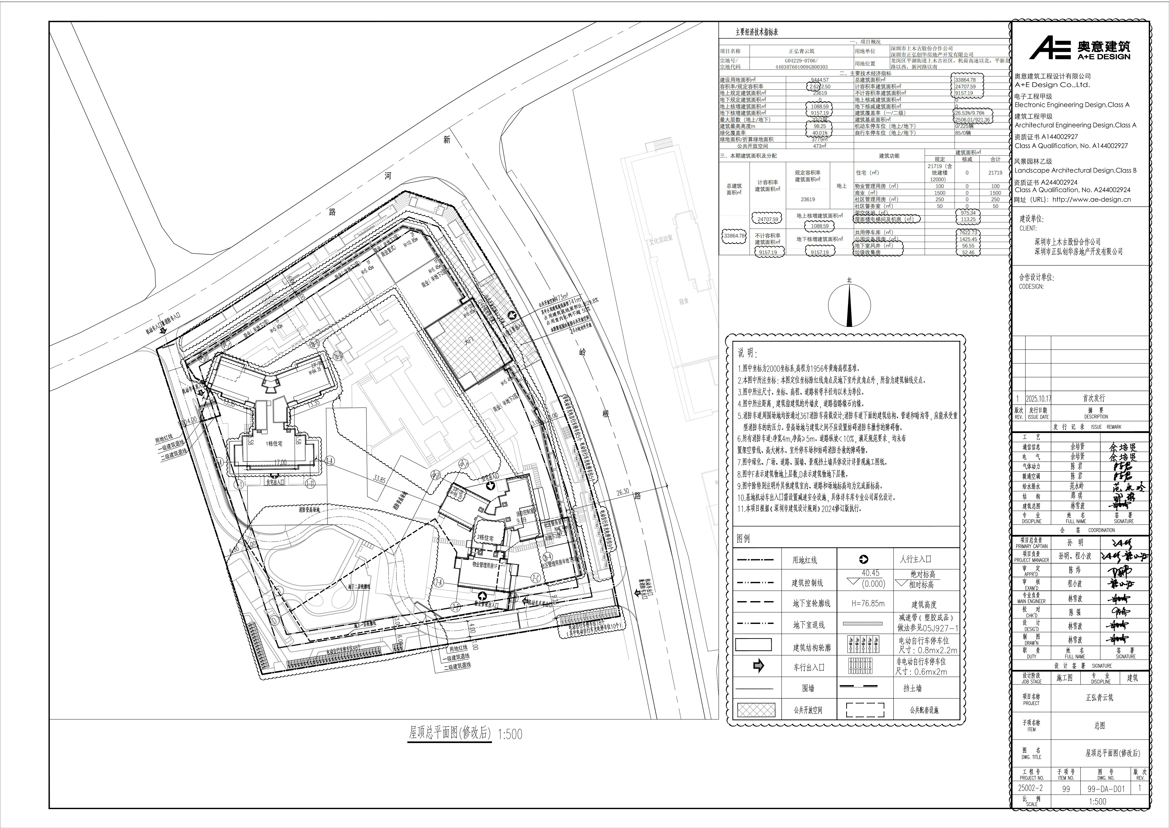
  深圳市上木古股份合作公司、深圳市正弘创华房地产开发有限公司向我局申请办理正弘青云筑项目的建设工程规划许可证变更,该项目位于龙岗区平湖街道上木古社区,机荷高速以北,平新北路以西。用地单位于2021年7月取得《建设工程规划许可证》(深规划资源建许字LG-2021-0081号)。本次申请修改内容涉及已批总平面图相关内容调整(详见云线圈注部分),现根据《中华人民共和国城乡规划法》相关规定予以公示。

  一、主要修改内容

  (一)1栋住宅、商业裙房及配套轮廓修改;塔楼及地下室层数、层高修改;人行主入口修改;消防道路、消防登高场地、公共开放空间位置及景观修改;主要经济技术指标修改。

  (二)图框信息、图纸版本号、出图日期及备注信息调整。

  二、公示时间

  公示期为10个工作日(2025年11月11日至2025年11月24日)。

  三、公示渠道

  (一)实地公示

  1.深圳市规划和自然资源局龙岗管理局

  地址:龙岗区龙城街道行政路2号建设大厦一楼大厅

  2.项目现场

  地址:龙岗区平湖街道上木古社区,机荷高速以北,平新北路以西。

  (二)网上公示

  1.深圳市规划和自然资源局门户网站

  网址:http://pnr.sz.gov.cn

  2.深圳市规划和自然资源局龙岗管理局门户网站

  网址:http://pnr.sz.gov.cn/lg/

  四、意见反馈

  公示期间如对该事项有意见或建议,请使用真实姓名及有效联系方式将意见通过邮寄或电子邮件反馈:

  (一)邮寄。邮寄地址:深圳市龙岗区龙城街道行政路2号建设大厦812室;收件人:建筑设计科1105室,张工;联系电话:0755-28918619;并在信封上注明“正弘青云筑项目公示意见”字样(日期以邮戳为准)。

  (二)电子邮件。请将意见发至邮箱:laishh@pnr.sz.gov.cn,邮件标题请按“正弘青云筑项目公示意见+姓名(或单位名称)”格式填写。

  公众意见征询截止日期为2025年11月24日。深圳市规划和自然资源局龙岗管理局将按相关规定对公众意见进行研究和处理。

  特此公示。

  附件:1.修改前总平面图

  2.修改后总平面图

  深圳市规划和自然资源局龙岗管理局

  2025年11月11日

触碰右侧展开