国土资源

您现在的位置 首页 > 五公开专栏 > 管理公开 > 监管信息公开 > 国土资源

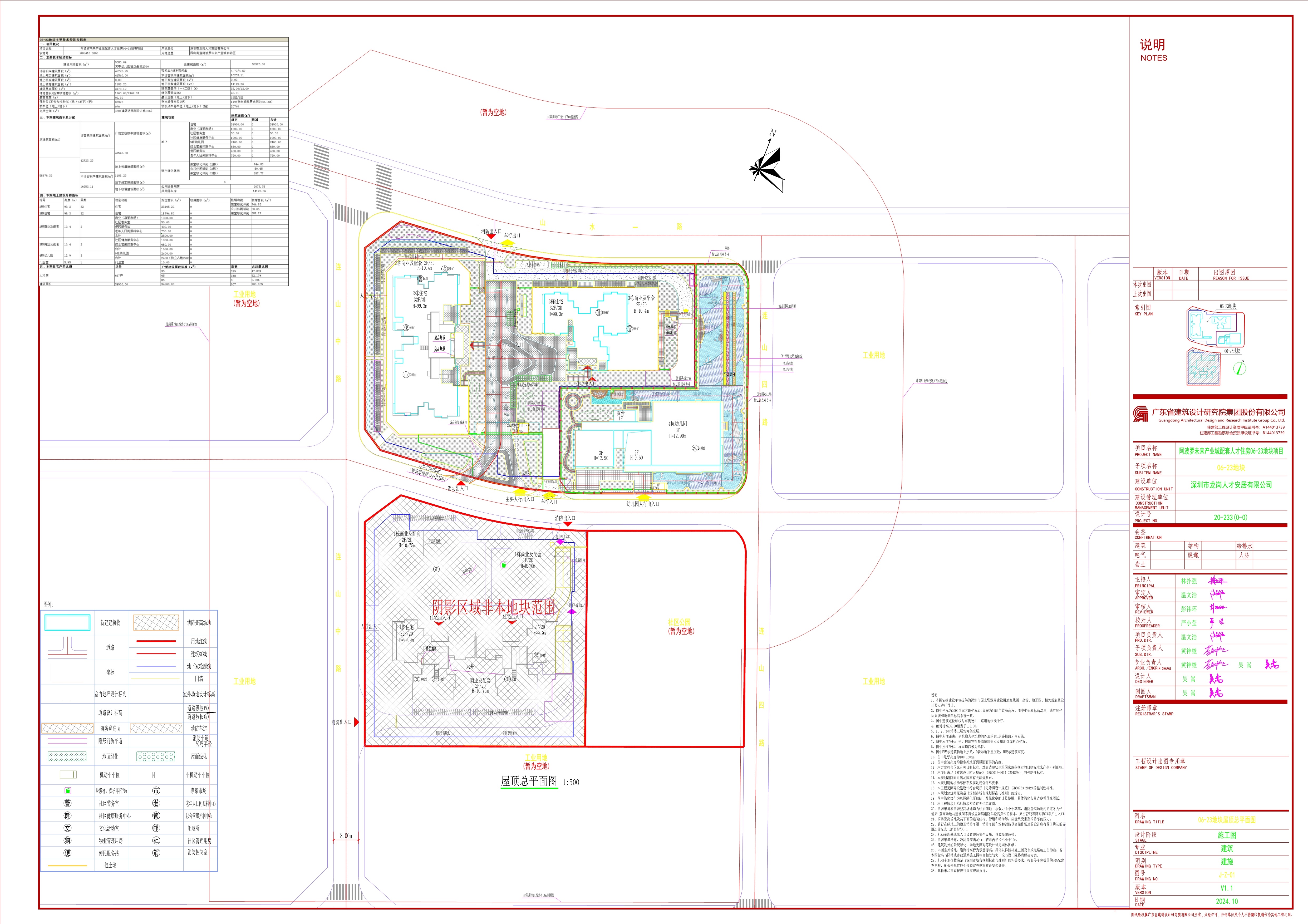
深圳市规划和自然资源局龙岗管理局关于公布安居麒龙苑项目(G08410-0060号宗地)总平面图的公告

信息来源:深圳市规划和自然资源局 信息提供日期:2025-04-02 09:00 【字体: 视力保护色:

  深圳市龙岗安居有限公司向我局申请安居麒龙苑项目(G08410-0060号宗地)的建设工程规划许可证核发,现已取得建字第4403072025GG0052590号《建设工程规划许可证》。

  依据《中华人民共和国城乡规划法》相关规定,现对该项目建字第4403072025GG0052590号《建设工程规划许可证》及总平面图予以公布。

  特此公告。

  附件:1.项目总平面图

  2.建字第4403072025GG0052590号《深圳市建设工程规划许可证》

  3.深规划资源设施字LG20250091号《深圳市建设工程设计文件核查表》

  深圳市规划和自然资源局龙岗管理局 

  2025年4月2日

触碰右侧展开