国土资源

您现在的位置 首页 > 五公开专栏 > 管理公开 > 监管信息公开 > 国土资源

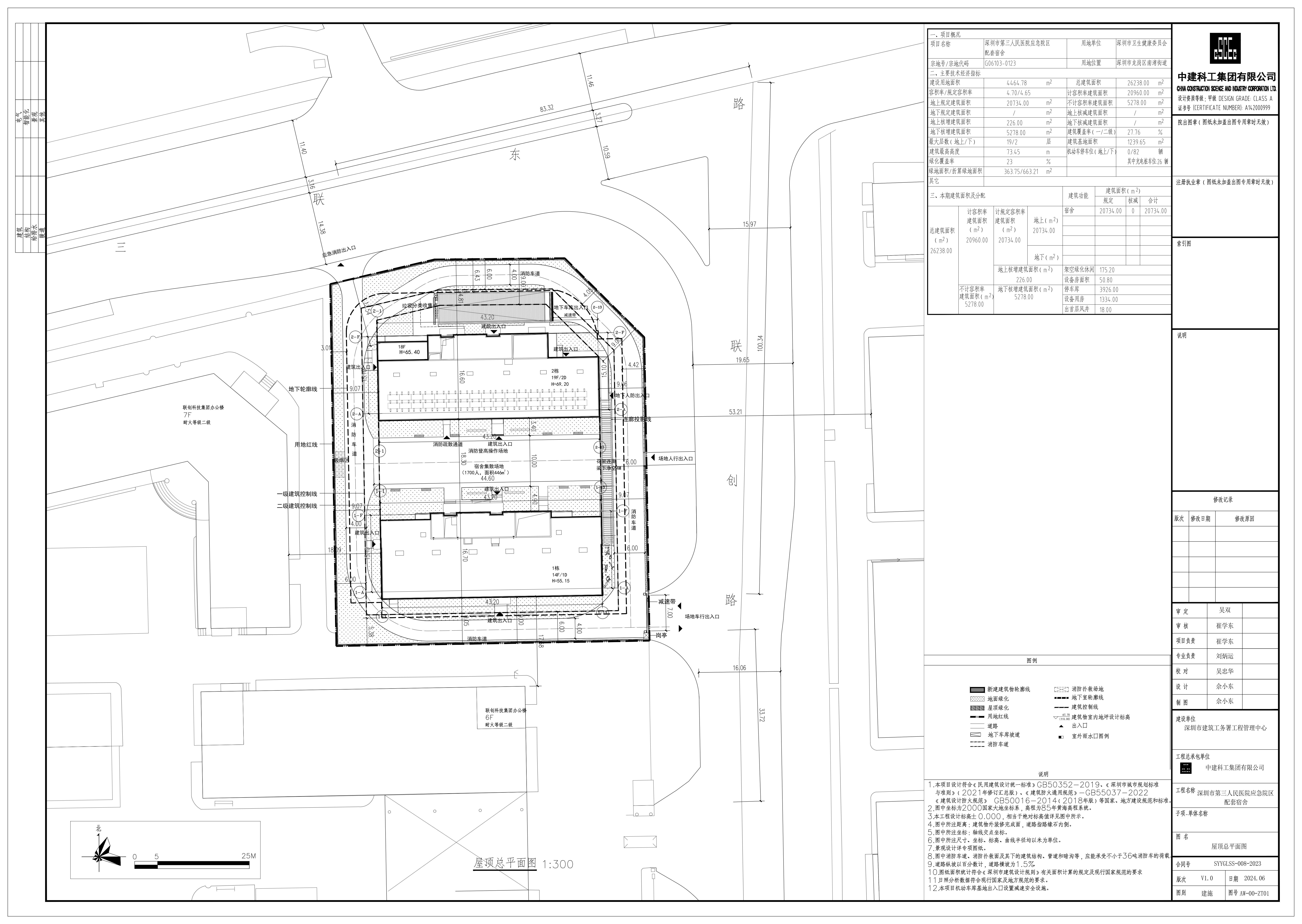
深圳市规划和自然资源局龙岗管理局关于公布深圳市第三人民医院应急院区配套宿舍工程总平面图的公告

信息来源:深圳市规划和自然资源局 信息提供日期:2024-10-22 09:00 【字体: 视力保护色:

  深圳市卫生健康委员会委托深圳市建筑工务署工程设计管理中心来文申报深圳市第三人民医院应急院区配套宿舍工程的建设工程规划许可证核发,现已取得《深圳市建设工程规划许可证》(建字第 4403072024GG0215497号)。

  依据《中华人民共和国城乡规划法》相关规定,现对该项目总平面图予以公布。

  特此公告。

  附件:1.项目总平面图

             2.项目《深圳市建设工程规划许可证》

  深圳市规划和自然资源局龙岗管理局

2024年10月22日

触碰右侧展开