国土资源

您现在的位置 首页 > 五公开专栏 > 管理公开 > 监管信息公开 > 国土资源

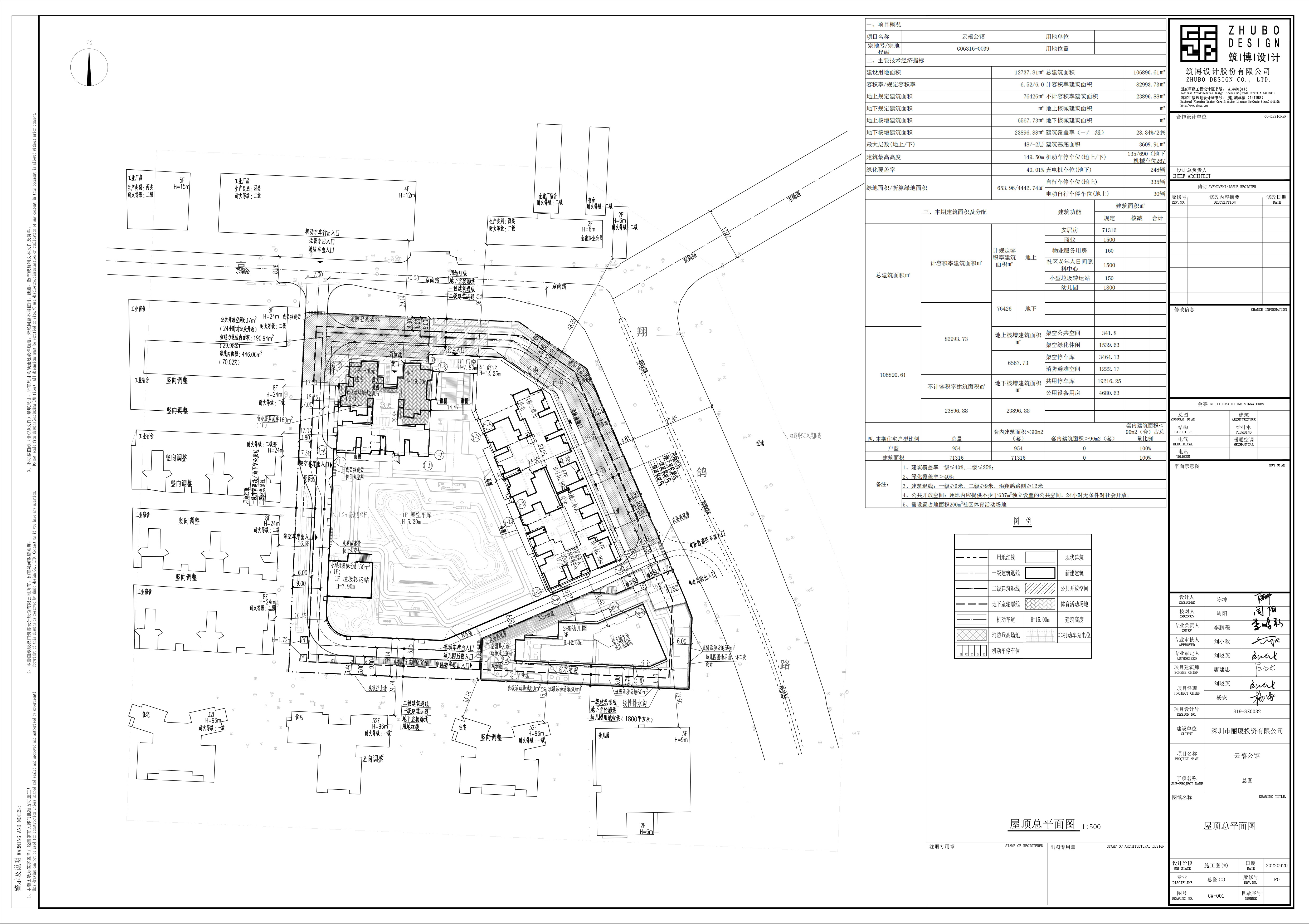
深圳市规划和自然资源局龙岗管理局关于公布云禧公馆项目《建设工程规划许可证》及总平面图的通告

信息来源:深圳市规划和自然资源局 信息提供日期:2023-03-15 09:00 【字体: 视力保护色:

  深圳市丽厦投资有限公司来文申请云禧公馆项目的建设工程规划类许可证核发(建筑类)。项目用地位于龙岗区布吉街道辖区,经深圳市规划和自然资源局龙岗管理局审查,同意核发该项目的《建设工程规划许可证》(深规划资源建许字LG-2023-0035号)。根据《中华人民共和国城乡规划法》第四十条的规定,现将本次核发的《建设工程规划许可证》及总平面图予以公布。

  特此通告。

  附件:1.《建设工程规划许可证》

  2.项目总平面图

深圳市规划和自然资源局龙岗管理局

2023年3月15日

触碰右侧展开