国土资源

您现在的位置 首页 > 五公开专栏 > 管理公开 > 监管信息公开 > 国土资源

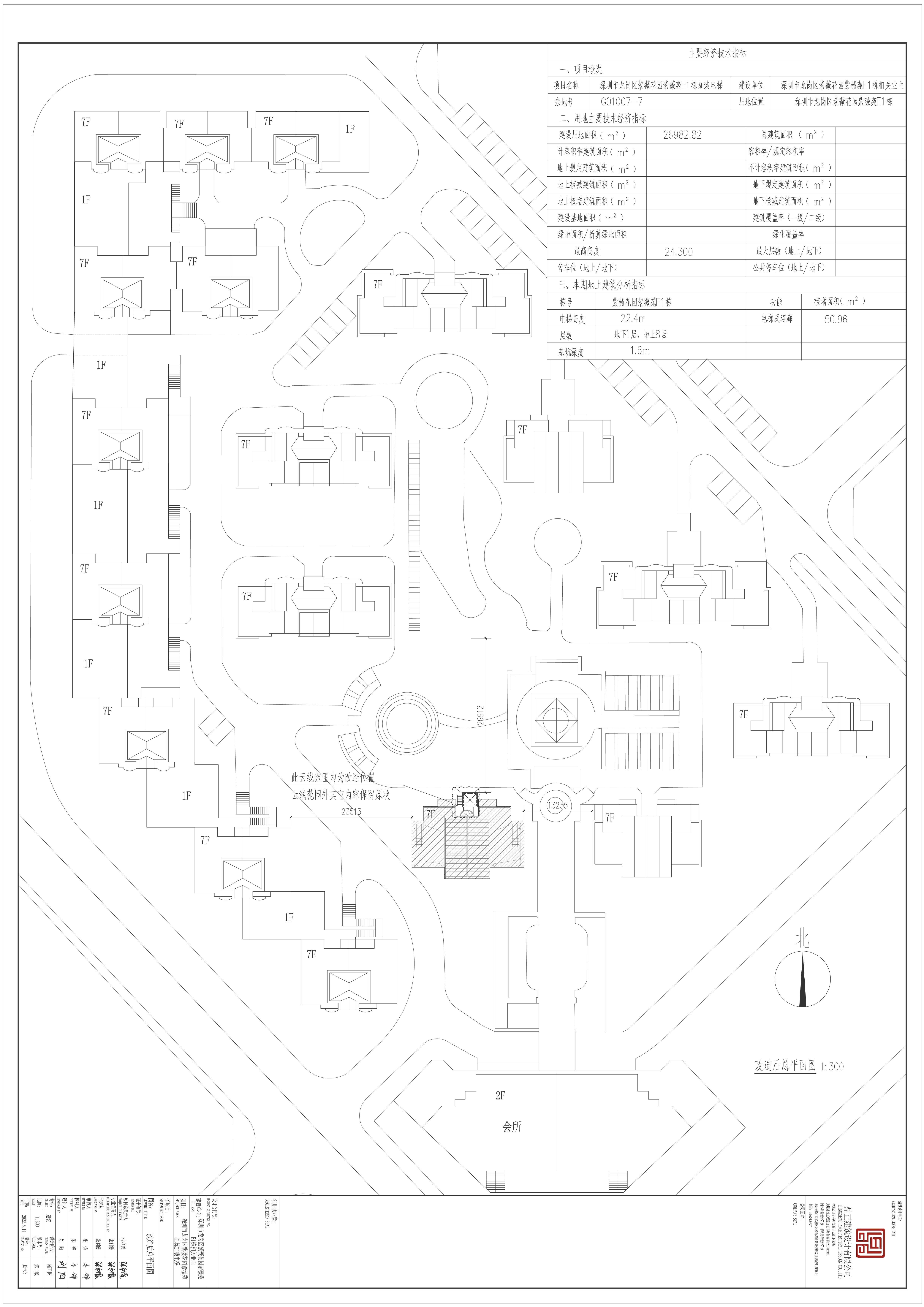
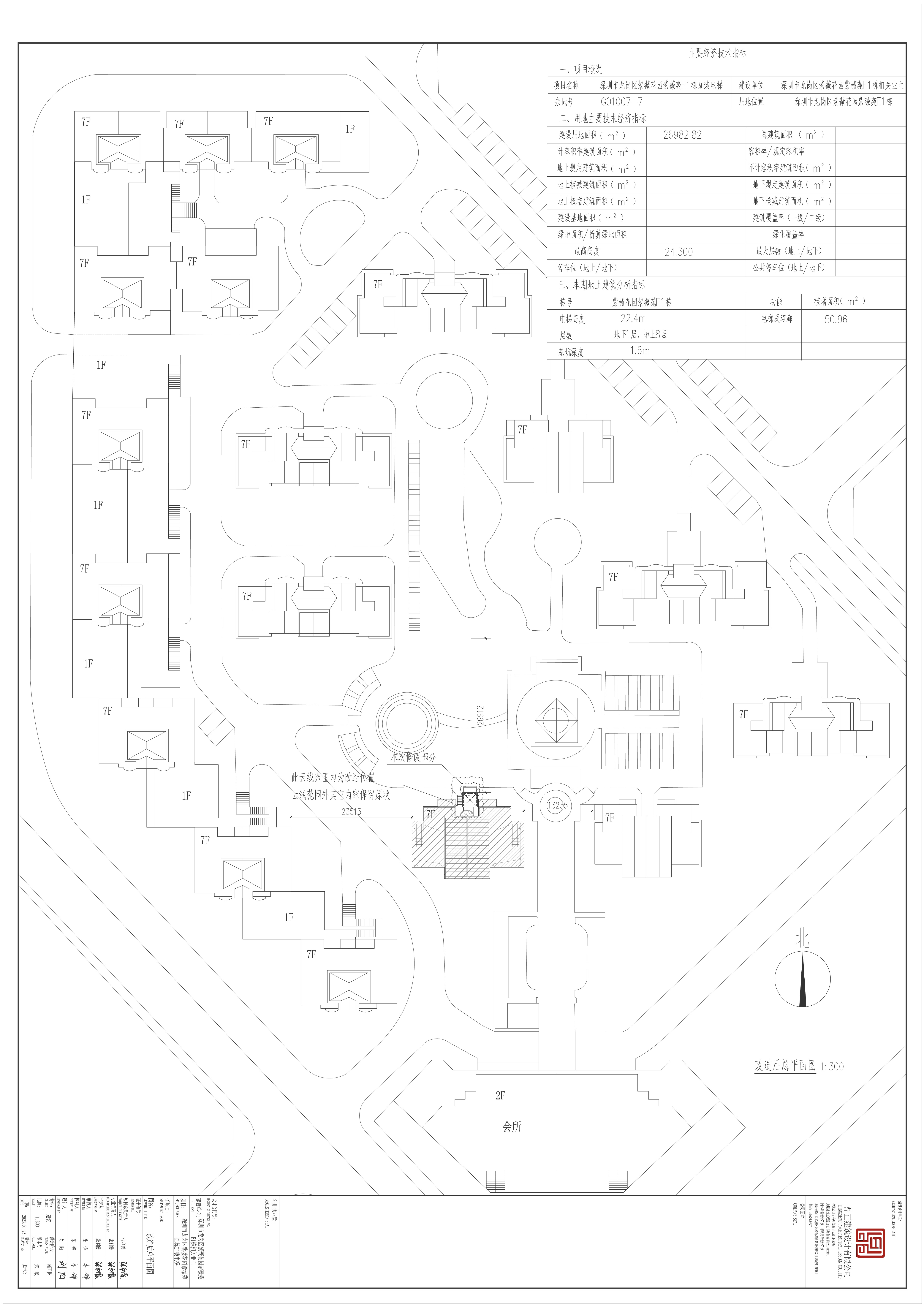
深圳市规划和自然资源局龙岗管理局关于紫薇花园紫薇苑E1栋加装电梯项目总平面图修改事宜的公示

信息来源:深圳市规划和自然资源局 信息提供日期:2023-05-10 09:00 【字体: 视力保护色:

  紫薇花园紫薇苑E1栋业主申请紫薇花园紫薇苑E1栋加装电梯项目施工图纸修改。紫薇花园紫薇苑E1栋加装电梯项目位于龙城街道【宗地号:G01007-7】,于2022年9月7日取得《建设工程规划许可证》(深规划资源建许字LG-2022-0095号)。本次涉及总平面修改,主要内容为(详情如附图云线所示):

  在原首层平面图增加一扇电梯门,一处平台及护栏,二层平面图增加雨篷。

  本次修改内容满足《深圳市既有住宅加装电梯管理规定》的要求,并取得专有部分占本单元建筑物总面积三分之二以上的业主、且占本单元业主总人数三分之二以上的业主签字同意。   

  现根据《中华人民共和国城乡规划法》相关规定予以公示,公示期为10个工作日(2023年5月10日至2023年5月23日)。本公示自发布之日起在项目现场(地址:龙岗区龙城街道紫薇花园紫薇苑E1栋)、深圳市规划和自然资源局门户网站(http://pnr.sz.gov.cn)及深圳市规划和自然资源局龙岗管理局一楼大厅和网站(地址:龙岗区中心城行政路2号,网址:http://pnr.sz.gov.cn/lg/)同时公示。公示期间,如对该项目上述变更内容有异议,请使用真实姓名及有效联系方式通过书面形式与深圳市规划和自然资源局龙岗管理局联系,公示期满无异议,将按规定办理相关手续。

  特此公示。

  附件:1.修改前总平面图

            2.修改后总平面图

  深圳市规划和自然资源局龙岗管理局

  2023年5月10日

  (联系人:陈工,电话:0755-28918619,传真:0755-28910030)

触碰右侧展开