通知公告

您现在的位置 首页 > 政务公开 > 政府信息公开 > 通知公告

深圳市规划和自然资源局龙岗管理局关于安居颢龙苑项目总平面修改事宜公示

信息来源:深圳市规划和自然资源局 信息提供日期:2022-05-13 09:00 【字体: 视力保护色:

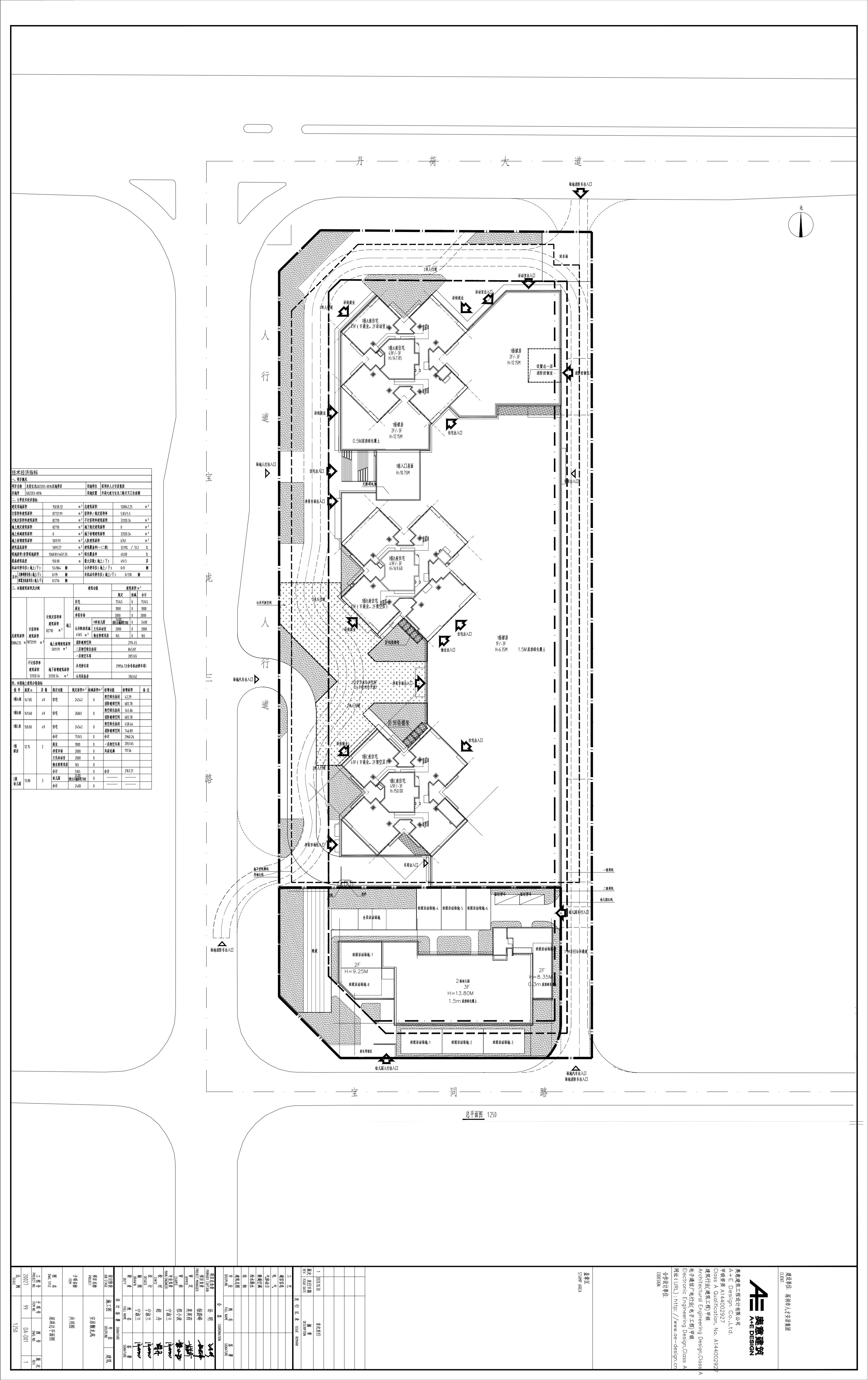
  深圳市人才安居集团有限公司申请安居颢龙苑项目施工图修改,安居颢龙苑项目位于宝龙街道G02203-0016号宗地,于2020年11月13日取得《建设工程规划许可证》(深规划资源建许字LG-2020-0081号)。本次施工图修改内容涉及总平面修改,主要内容为(详情如附图云线所示):

  1.内部消防车道转弯半径调整,同时调整部分绿化轮廓;

  2.裙房北面、西面雨棚调整;

  3.主入口楼梯及顶盖造型、A座入户大堂上空雨棚及屋面轮廓及二层活动室东侧入口雨棚调整;

  4.A、B、C座三层增加线条及雨棚、屋面机房轮廓及雨棚调整;

  5.东侧车行道右移,部分增设绿化。

  本次修改内容满足《建设工程规划许可证》(深规划资源建许字LG-2020-0081号)及《土地使用权出让合同书》(深地合字(2020)2007号)要求。

  现根据《中华人民共和国城乡规划法》相关规定予以公示,公示期为10个工作日(2022年5月13日至2022年5月26日)。公示期间,如对该项目上述变更内容有异议,请使用真实姓名及有效联系方式通过书面形式与深圳市规划和自然资源局龙岗管理局联系,本公示自发布之日起在项目现场(地址:龙岗区宝龙街道新能源产业基地宝龙三路与宝同路交会处)、深圳市规划和自然资源局门户网站(http://pnr.sz.gov.cn/)及深圳市规划和自然资源局龙岗管理局一楼大厅(地址:龙岗区中心城行政路2号)同时公示,公示期满无异议,将按规定办理相关手续。

  联系人:郐工,电话(0755)28918629,传真(0755)28910030

  特此公示。

  附件:1.修改前总平面图

  2.修改后总平面图

深圳市规划和自然资源局龙岗管理局

2022年5月13日

触碰右侧展开