通知公告

您现在的位置 首页 > 政务公开 > 政府信息公开 > 通知公告

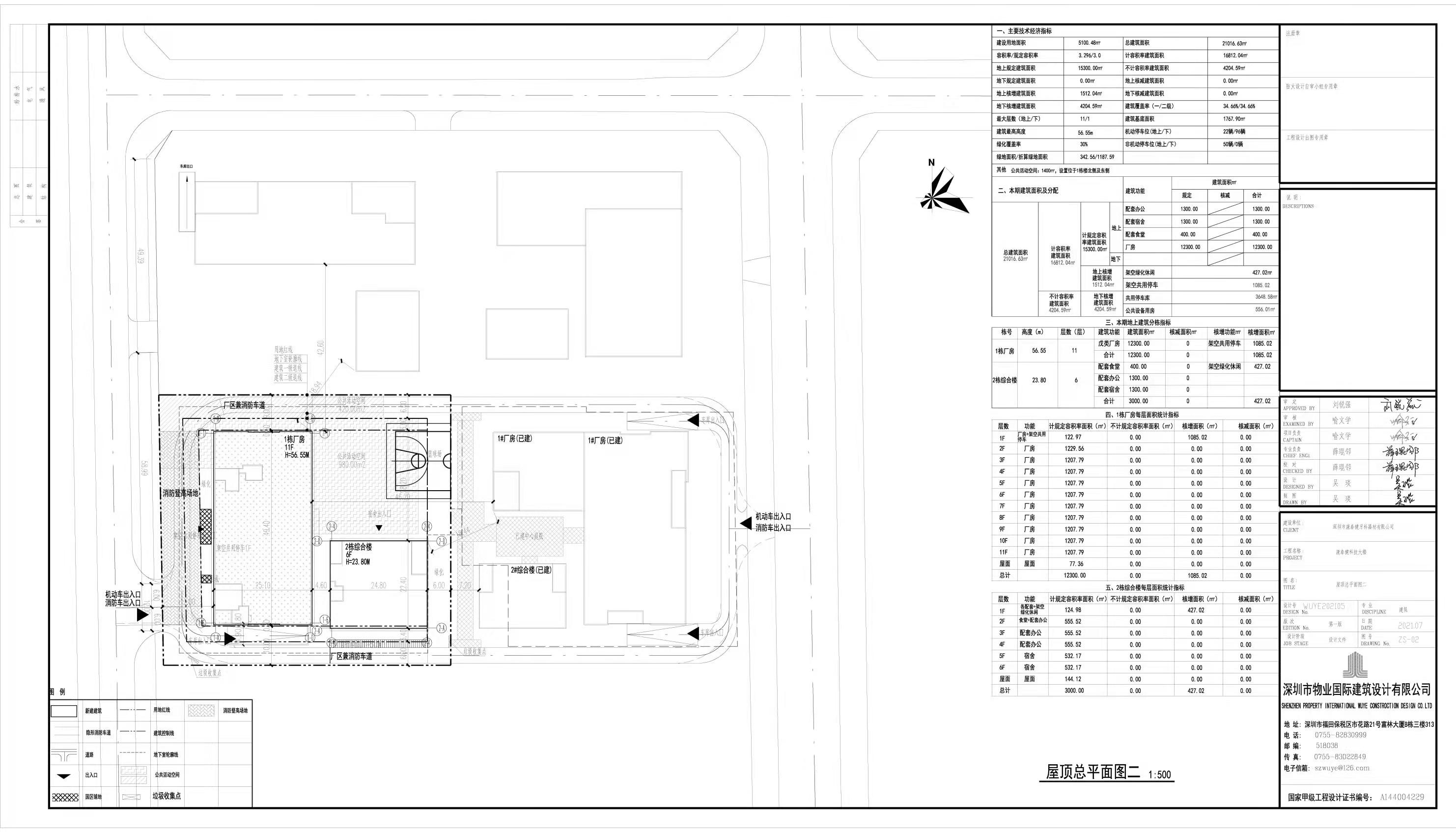
市规划和自然资源局坪山管理局关于康泰健科技大楼项目(G14316-0114号宗地)总平面图的通告

信息来源:深圳市规划和自然资源局 信息提供日期:2021-09-26 09:50 【字体: 视力保护色:

  深圳市康泰健牙科器材有限公司开发建设的康泰健科技大楼项目(G14316-0114号宗地)位于坪山区丹碧路与聚青路交汇处东南角,总用地面积5100.48㎡,土地用途为普通工业用地。该项目于2021年8月16日取得《建设工程规划许可证》(深规划资源建许字PS-2021-0023号)。

  依据《中华人民共和国城乡规划法》相关规定,现对该项目的总平面图予以公布。公布地址为:深圳市规划和自然资源局网站http://pnr.sz.gov.cn;深圳市规划和自然资源局坪山管理局网站http://pnr.sz.gov.cn/ps/。

  附件:康泰健科技大楼项目(G14316-0114号宗地)总平面图

市规划和自然资源局坪山管理局

2021年9月26

触碰右侧展开