通知公告

您现在的位置 首页 > 政务公开 > 政府信息公开 > 通知公告

深圳市规划和自然资源局龙岗管理局关于平湖街道旧墟镇小学总平面图变更的公示

信息来源:深圳市规划和自然资源局 信息提供日期:2021-05-27 09:00 【字体: 视力保护色:

  2021年5月深圳市规划和自然资源局龙岗管理局受理了深圳市龙岗区教育局(中共深圳市龙岗区委教育工作委员会)关于平湖街道旧城镇小学项目建设工程设计文件修改备案的申请。本次申请涉及LG-2019-0069号《建设工程规划许可证》中批复的平湖街道旧墟镇小学总平面图变更,根据《中华人民共和国行政许可法》第四十七条、《中华人民共和国城乡规划法》第五十条及《深圳市建设工程规划许可(房建类)报建文件编制技术规定》的规定,现对该项目总平面修改予以公示,本次修改主要内容如下:

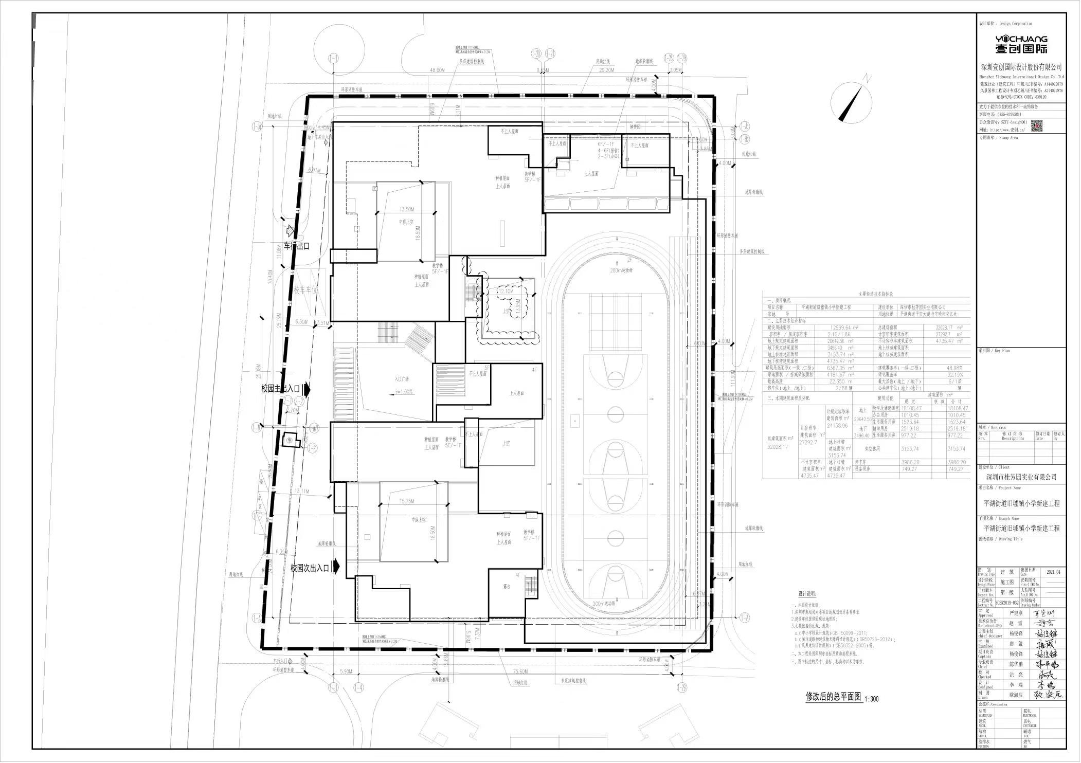
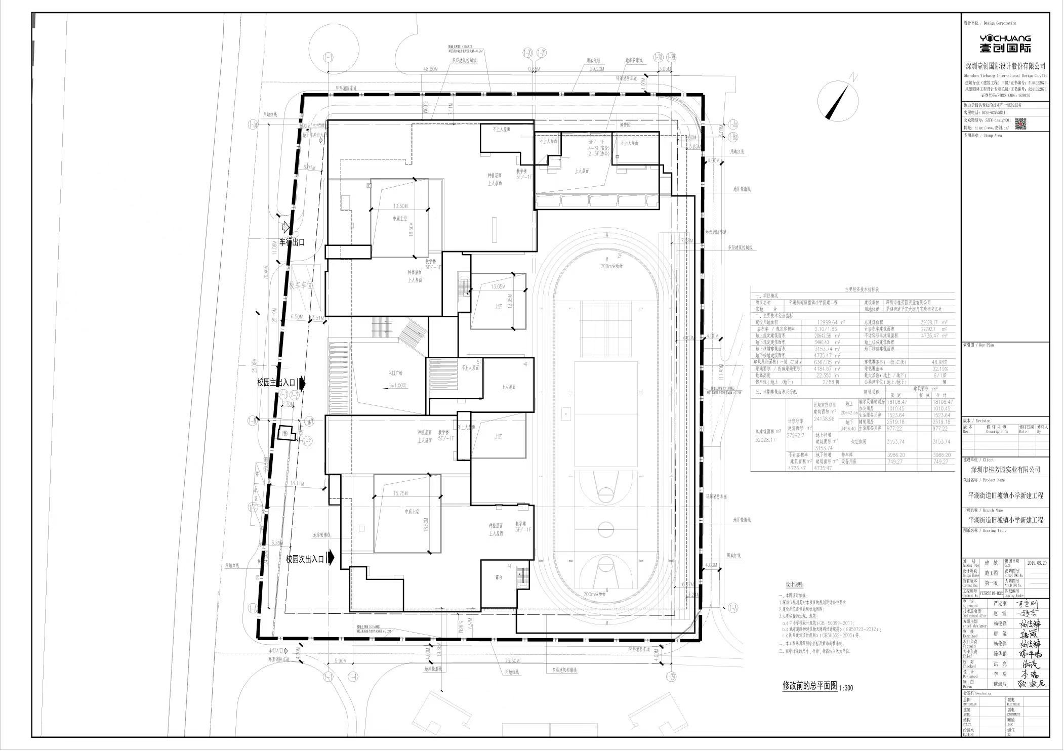
  LT-6楼梯东墙向东加宽0.9米,天井南边向南加宽0.9米,标注尺寸相应变化。

  以上变更内容详见修改后总平面图中云线圈注部分。公示时间为10个工作日(自2021年5月27日起至2021年6月9日止)。

  本公示自发布之日起在深圳市规划和自然资源局网站(http://pnr.sz.gov.cn)、龙岗管理局一楼大厅(地址:深圳市龙岗区中心城行政路2号建设大厦)及项目现场(地址:深圳市龙岗区平湖街道守珍街与上大街交叉口东南侧)同时进行展示。公示期间如对该项目总平面图修改有任何意见和建议,请使用真实姓名及联系方式以书面形式反馈至深圳市规划和自然资源局龙岗管理局(地址:深圳市龙岗区中心城行政路2号建设大厦1105室)。公示期满如无异议,将按规定办理相关手续。

  特此公示。

  附件:1.修改前的总平面图

  2.修改后的总平面图

深圳市规划和自然资源局龙岗管理局

2021年5月27日

  (联系人:卢工;联系电话0755-28918619;传真:0755-28920300)

触碰右侧展开