通知公告

您现在的位置 首页 > 政务公开 > 政府信息公开 > 通知公告

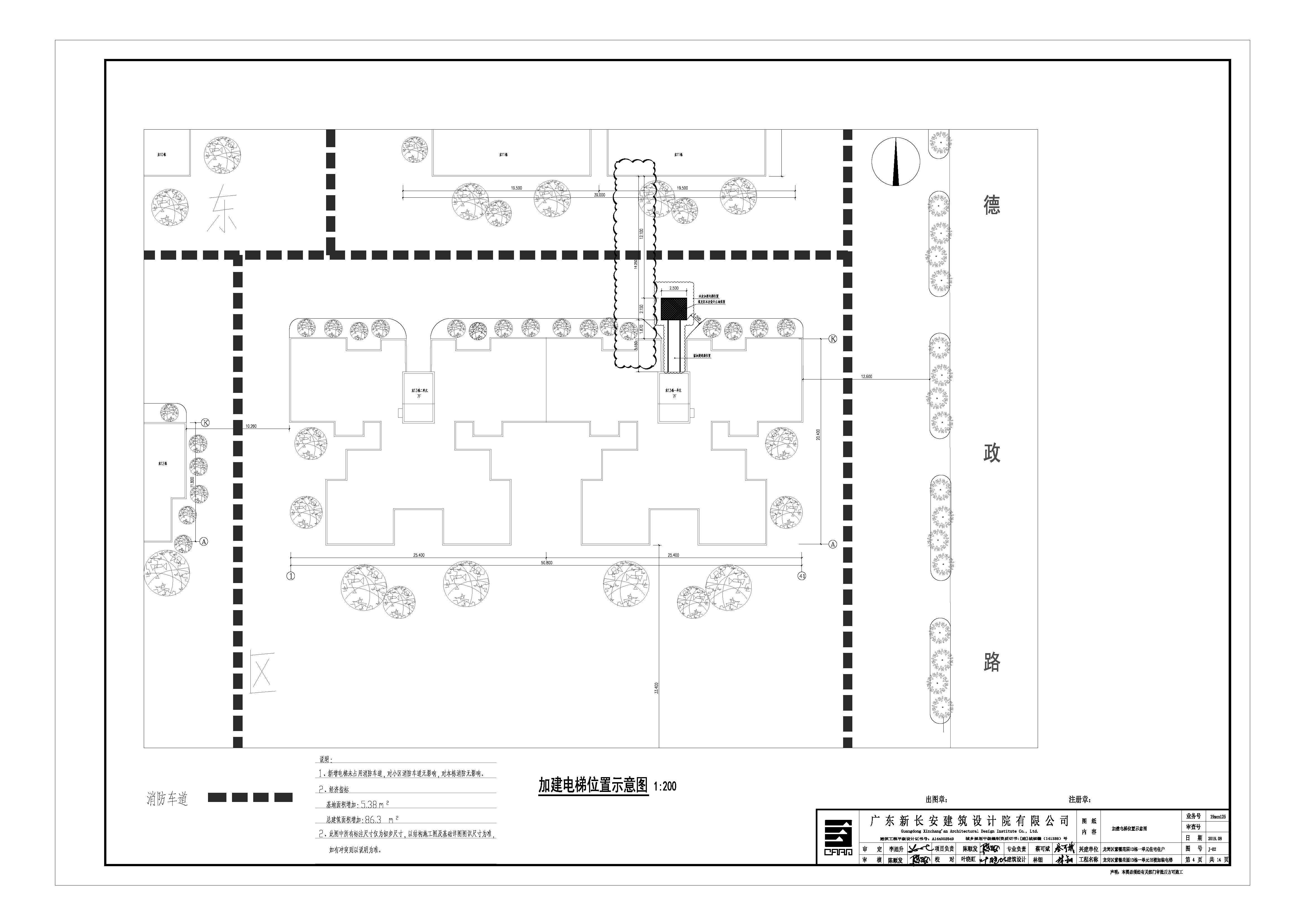
深圳市规划和自然资源局龙岗管理局关于紫薇花园东13栋一单元加装电梯工程图纸变更的公示

信息来源:深圳市规划和自然资源局 信息提供日期:2021-05-24 09:00 【字体: 视力保护色:

  2021年5月深圳市规划和自然资源局龙岗管理局受理了紫薇花园东13栋一单元加装电梯工程的变更建设工程规划许可的申请。本次申请涉及《建设工程规划许可证》中图纸的变更,根据《中华人民共和国城乡规划法》《深圳市建设工程规划许可(房建类)报建文件编制技术规定》的要求,现对该项目图纸修改予以公示,本次修改主要内容如下:

  电梯入户连廊与两侧墙体加板连接,修改后加装电梯建筑面积由86.3平方米调整为93.54平方米。以上变更内容详见修改后图纸中云线圈注部分。

  根据《中华人民共和国行政许可法》第四十七条及《中华人民共和国城乡规划法》第五十条的规定,现对该项目修改予以公示,公示时间为10个工作日(自2021年05月24日起至2021年6月4日止),自发布之日起在深圳市规划和自然资源局网站(http://pnr.sz.gov.cn)、龙岗管理局一楼大厅(地址:深圳市龙岗区中心城行政路2号建设大厦)及项目现场(地址:龙岗区龙城街道紫薇花园东13栋一单元)同时进行展示。公示期间如对该项目图纸修改有任何意见和建议,请使用真实姓名及联系方式以书面形式反馈至深圳市规划和自然资源局龙岗管理局(地址:深圳市龙岗区中心城行政路2号建设大厦1101室)。公示期满如无异议,将按规定办理相关手续。

  特此公示。

  附件:1.修改前的图纸

  2.修改后的图纸

深圳市规划和自然资源局龙岗管理局

2021年5月24日

  (联系人:曾工;联系电话0755-28918900)

触碰右侧展开