通知公告

您现在的位置 首页 > 政务公开 > 政府信息公开 > 通知公告

深圳市规划和自然资源局大鹏管理局关于深圳市公安局大鹏分局大鹏派出所项目总平面图修改公示的通告

信息来源:深圳市规划和自然资源局 信息提供日期:2021-05-11 11:48 【字体: 视力保护色:

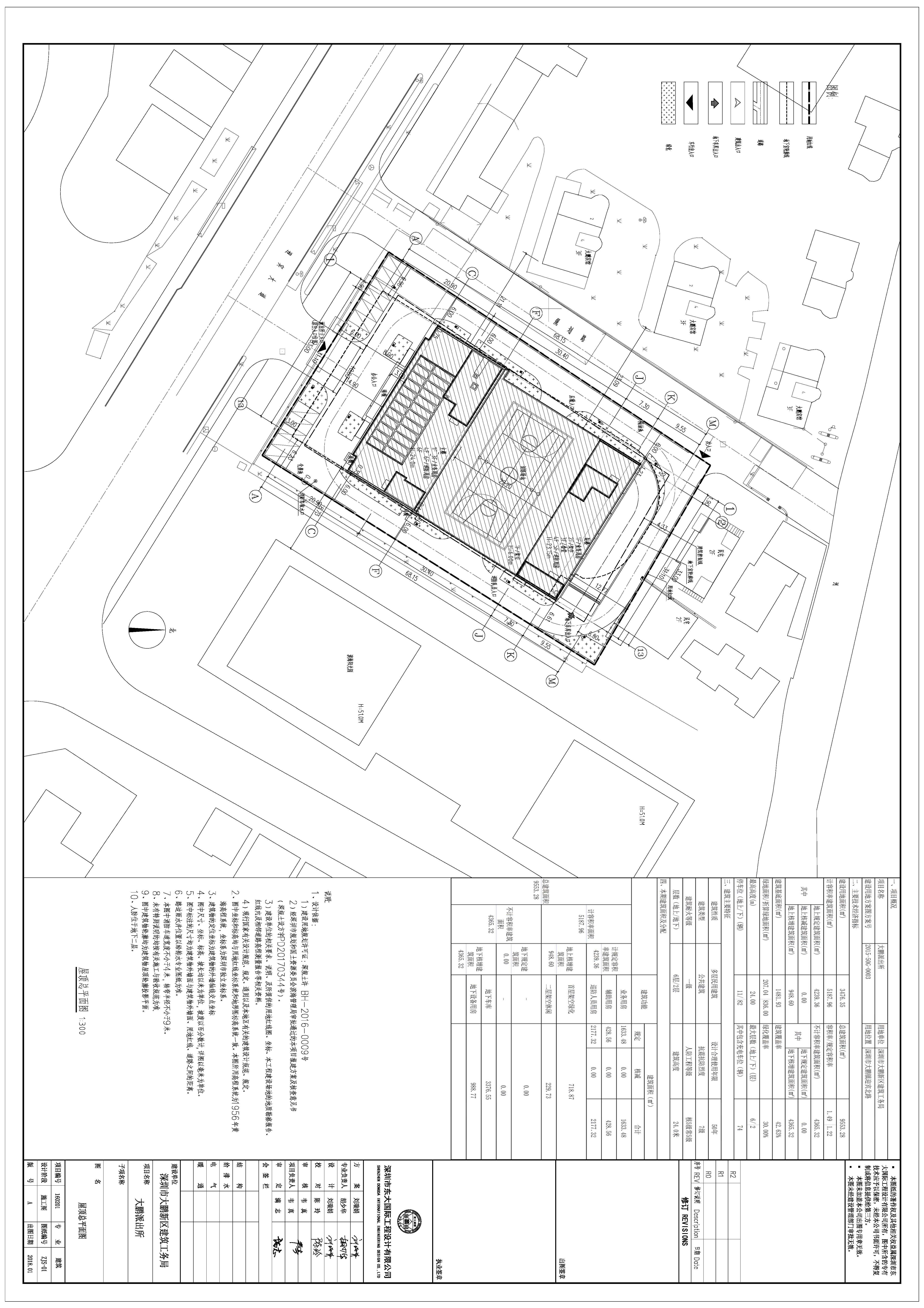
  深圳市大鹏新区建筑工务署来文办理深圳市公安局大鹏分局大鹏派出所项目的《建设工程规划许可证》变更手续,该项目位于大鹏新区大鹏办事处迎宾路北侧G16507-8041宗地,于2018年7月取得《建设工程规划许可证》(深规土建许字DP-2018-0009号),现建设单位申请对该项目原已批总平面图进行局部调整,主要内容如下:

  一、总建筑面积由原9553.28平方米修改为9562.96平方米;

  二、计容积率面积由原5187.96平方米修改为5197.64平方米,其中计规定容积率面积由原4239.36平方米修改为4249.04平方米;

  三、地下核增建筑面积中地下车库由原3376.55平方米修改为3225.32平方米,地下设备用房由原988.77平方米修改为1140平方米;

  四、停车位(地上/下)(辆)由原11/82修改为11/79,充电车位(辆)由原74修改为2(快充)/28(慢充);

  五、出入口处新增门卫室;

  六、地上两个车位修改为快充车位。

  以上修改内容详见修改后总平面图中云线圈注部分,调整后的技术经济指标符合《建设用地规划许可证》及《建设用地划拨决定书》及相关文件中的规定要求。

  根据《中华人民共和国行政许可法》第四十七条及《中华人民共和国城乡规划法》第五十条的规定,现对该项目总平面图修改予以公示,公示期十个工作日(2021年5月11日至2021年5月23日)。如对该项目总平面图修改有任何意见和建议,请在公示期内使用真实姓名及联系方式以书面形式反馈至深圳市规划和自然资源局大鹏管理局301办公室(地址:大鹏新区葵涌街道金业大道140号生命科学产业园A5栋,邮编:518108)。相关利害关系人享有要求听证的权利,在公示期内提出听证申请的,深圳市规划和自然资源局大鹏管理局将在二十日内组织听证。公示期满如无人提出申请,深圳市规划和自然资源局大鹏管理局将按规定办理批准手续。

  本通告内容和修改前后的总平面图等具体内容同时在深圳市规划和自然资源局网站(http://pnr.sz.gov.cn)及项目现场一并公示。

  附件:

  1.修改前总平面图

  2.修改后总平面图

深圳市规划和自然资源局大鹏管理局

2021年5月11日

触碰右侧展开