通知公告

您现在的位置 首页 > 政务公开 > 政府信息公开 > 通知公告

深圳市规划和自然资源局龙岗管理局关于莲花山庄三村H45号住宅危房重建建筑设计方案的公示

信息来源:深圳市规划和自然资源局 信息提供日期:2025-05-16 15:42 【字体: 视力保护色:

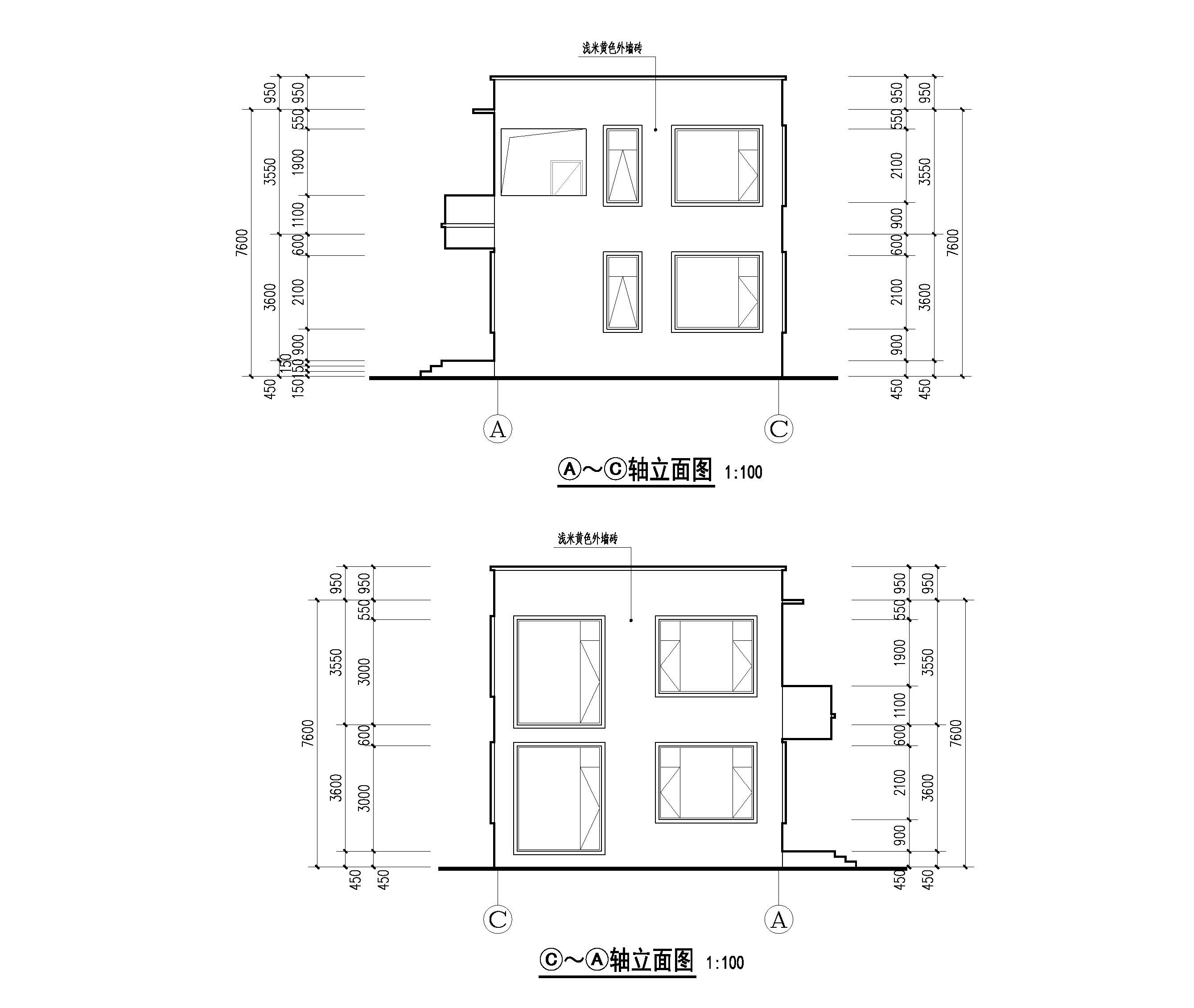
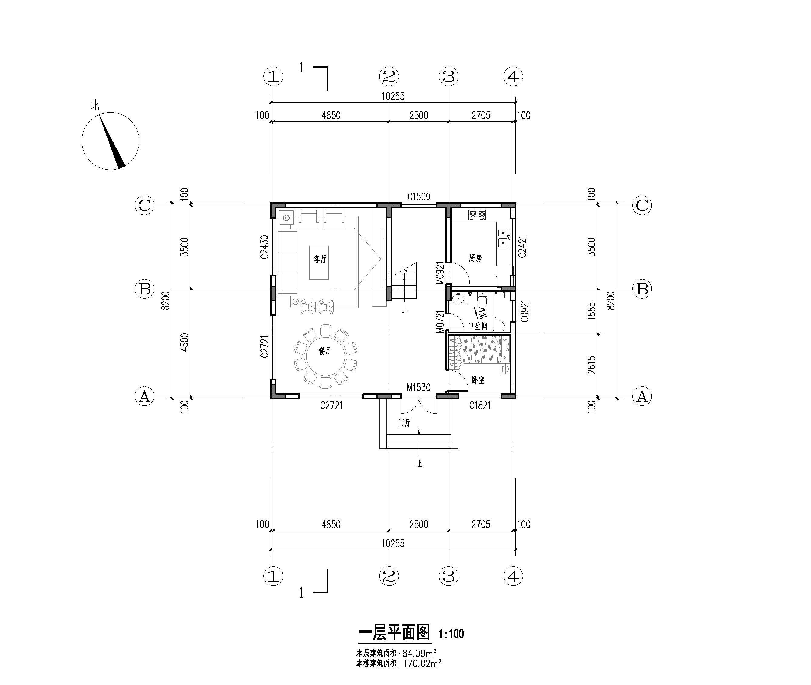
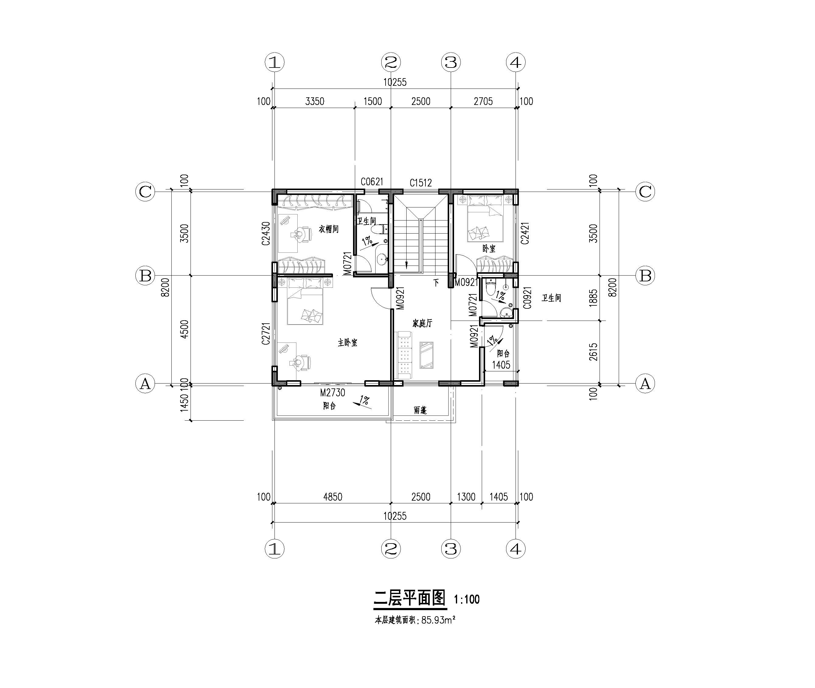
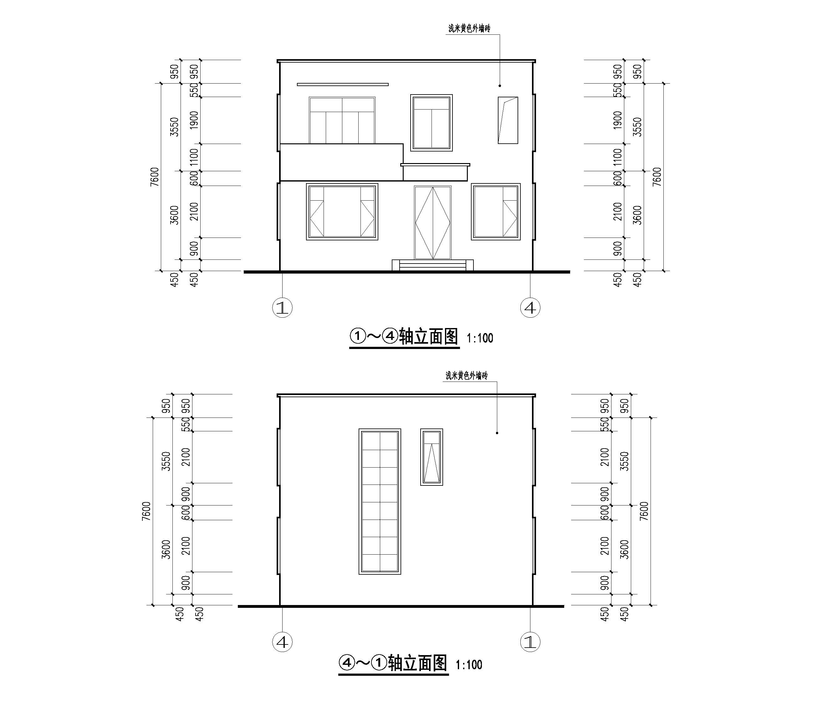
  市民石运可来文申报莲花山庄三村H45号住宅危房重建建筑设计方案,该房产位于布吉街道莲花路莲花山庄内,宗地号G06211-2,重建住宅2层,建筑面积170.02平方米,建筑高度7.60米,根据《深圳市危房重建规划管理规定》第十条要求,现对该建筑重建方案设计予以公示。

  一、公示内容

  效果图、平面图、立面图、剖面图。

  二、公示时间

  公示期为7个工作日(2025年5月16日至2025年5月26日)。

  三、公示地点

  (一)深圳市规划和自然资源局龙岗管理局

  地址:龙岗区龙城街道行政路2号建设大厦一楼大厅

  (二)项目现场

  地址:莲花山庄小区

  (三)网上展示

  1.深圳市规划和自然资源局网站

  网址:http://pnr.sz.gov.cn

  2.深圳市规划和自然资源局龙岗管理局网站

  网址:http://pnr.sz.gov.cn/lg/

  四、意见反馈

  公示期间如对该事项有意见或建议,请使用真实姓名及有效联系方式将意见通过邮寄或电子邮件反馈:

  (一)邮寄。邮寄地址:深圳市龙岗区龙城街道行政路2号建设大厦812室;收件人:建筑设计科1105室,刘工;联系电话:0755-28906020;并在信封上注明“莲花山庄三村H45号住宅公示意见”字样(日期以邮戳为准)。

  (二)电子邮件。请将意见发至邮箱:laishh@pnr.sz.gov.cn,邮件标题请按“莲花山庄三村H45号住宅公示意见+姓名(或单位名称)”格式填写。

  公众意见征询截止日期为2025年5月26日。深圳市规划和自然资源局龙岗管理局将按相关规定对公众意见进行研究和处理。

  特此公示。

  附件:1.效果图                   

  2.平面位置图                

  3.一层平面图             

  4.二层平面图

  5.立面图(1)

  6.立面图(2)

  7.剖面图

  深圳市规划和自然资源局龙岗管理局

  2025年5月16日

触碰右侧展开