通知公告

您现在的位置 首页 > 政务公开 > 政府信息公开 > 通知公告

深圳市规划和自然资源局龙岗管理局关于超频三大楼总平面图修改的公示

信息来源:深圳市规划和自然资源局 信息提供日期:2024-11-18 09:00 【字体: 视力保护色:

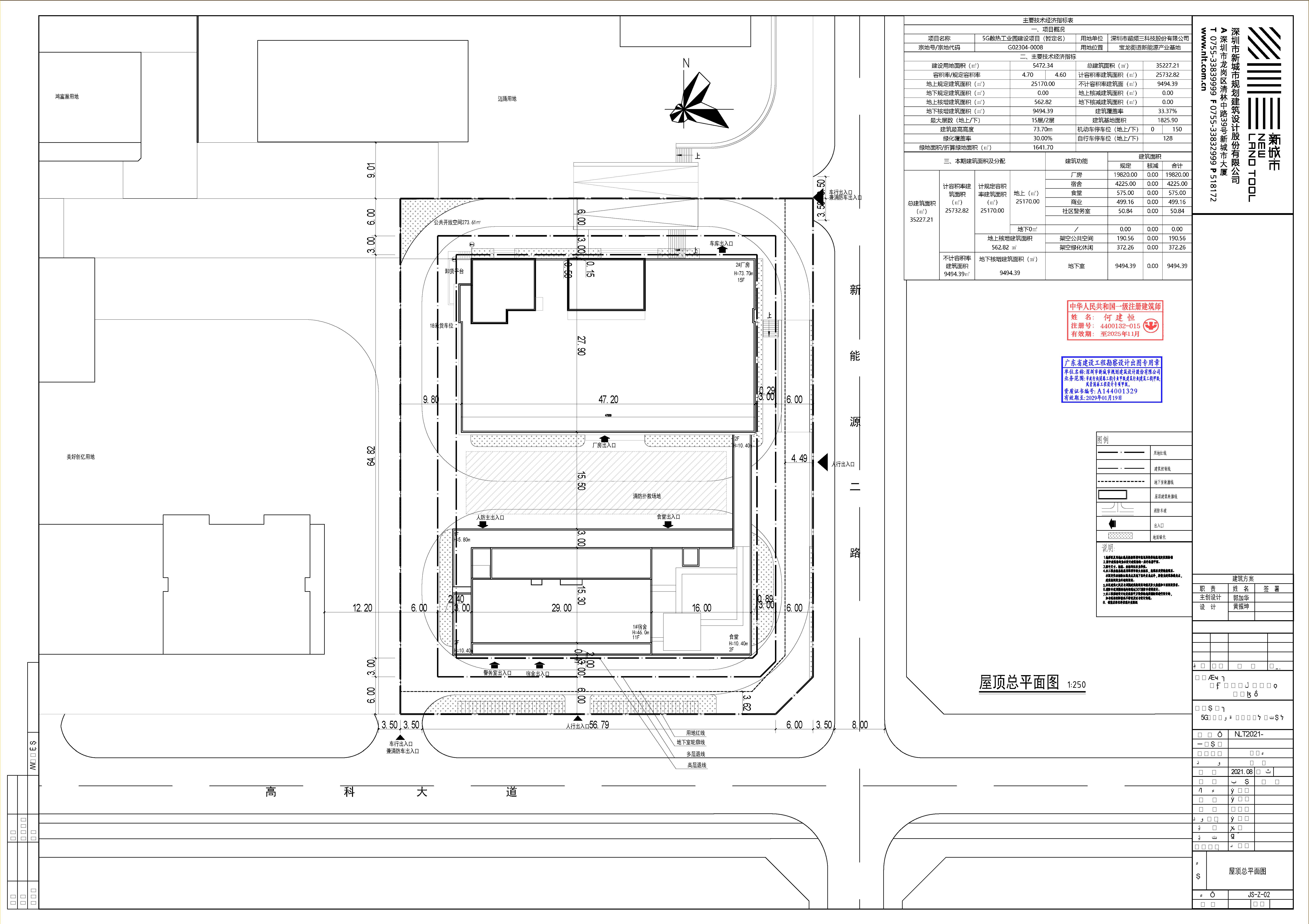
  深圳市超频三科技股份有限公司向我局申请办理超频三大楼的建设工程设计文件修改备案,该项目位于龙岗区宝龙街道宝龙三路以东、高科大道以北,用地单位于2021年10月25日取得《建设工程规划许可证》(LG-2021-0137号)。本次申请修改内容涉及已批总平面图相关内容调整(详见云线圈注部分)。

  一、主要修改内容

  (一)公共开放空间位置局部调整;自行车停车位位置调整;消防救援场地范围调整;南侧人行出入口调整至东南角;单体屋顶设备房轮廓局部调整。

  (二)补充绿化表达。

  (三)图纸版本号、日期调整。

  二、公示时间

  现根据《中华人民共和国城乡规划法》相关规定予以公示,公示期为10个工作日(2024年11月18日至2024年11月29日)。

  三、公示地点

  (一)深圳市规划和自然资源局龙岗管理局

  地址:龙岗区龙城街道行政路2号建设大厦一楼大厅

  (二)项目现场

  地址:龙岗区宝龙街道高科大道18号

  (三)网上展示

  1.深圳市规划和自然资源局网站

  网址http://pnr.sz.gov.cn

  2.深圳市规划和自然资源局龙岗管理局网站

  网址:http://pnr.sz.gov.cn/lg/

  四、意见反馈

  公示期间如对该事项有意见或建议,请使用真实姓名及有效联系方式将意见通过邮寄或电子邮件反馈:

  (一)邮寄。邮寄地址:深圳市龙岗区龙城街道行政路2号建设大厦812室;收件人:建筑设计科1105室,张工;联系电话:0755-28918619;并在信封上注明“超频三大楼公示意见”字样(日期以邮戳为准)。

  (二)电子邮件。请将意见发至邮箱:laishh@pnr.sz.gov.cn,邮件标题请按“超频三大楼公示意见+姓名(或单位名称)”格式填写。

  公众意见征询截止日期为2024年11月29日。深圳市规划和自然资源局龙岗管理局将按相关规定对公众意见进行研究和处理。

  特此公示。

  附件:1.修改前总平面图

             2.修改后总平面图

  深圳市规划和自然资源局龙岗管理局

2024年11月18日

触碰右侧展开