通知公告

您现在的位置 首页 > 政务公开 > 政府信息公开 > 通知公告

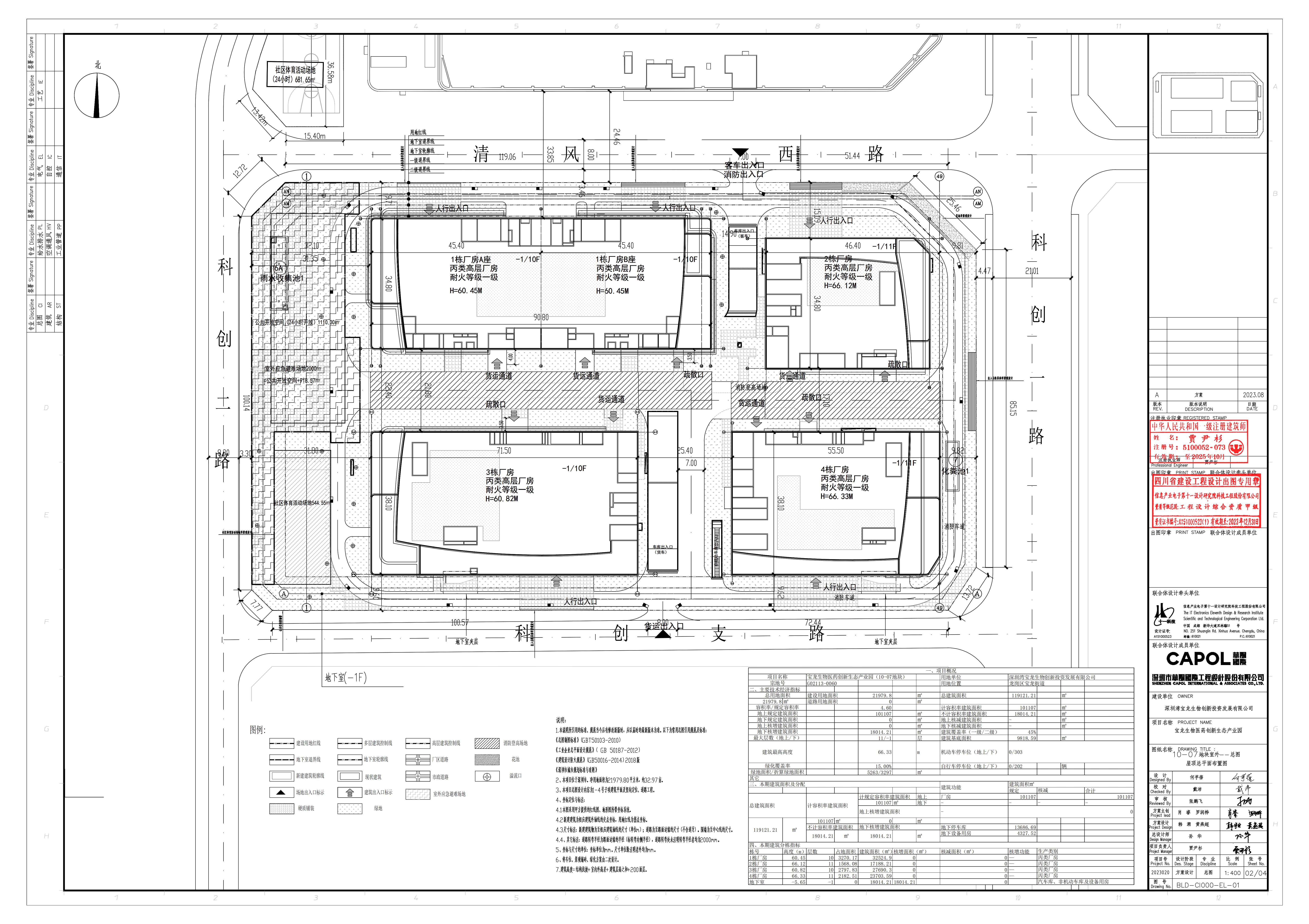
深圳市规划和自然资源局龙岗管理局关于宝龙生物医药创新生态产业园(G02113-0060号宗地)总平面图的通告

信息来源:深圳市规划和自然资源局 信息提供日期:2023-10-16 09:00 【字体: 视力保护色:

  宝龙生物医药创新生态产业园(G02113-0060号宗地)位于龙岗区宝龙街道科创一路与清风路交会处西南侧,用地面积21979.8平方米,用地单位为深圳湾宝龙生物创新投资发展有限公司,我局已核发该项目的《深圳市建设工程规划许可证》(建字第4403072023GG0059321号)。

  依据《中华人民共和国城乡规划法》相关规定,现将宝龙生物医药创新生态产业园(G02113-0060号宗地)项目的总平面图予以公布。

  特此通告。

  附件:1.总平面图

  2.深圳市建设工程规划许可证(建字第4403072023GG0059321号)

深圳市规划和自然资源局龙岗管理局

2023年10月16日

触碰右侧展开