通知公告

您现在的位置 首页 > 政务公开 > 政府信息公开 > 通知公告

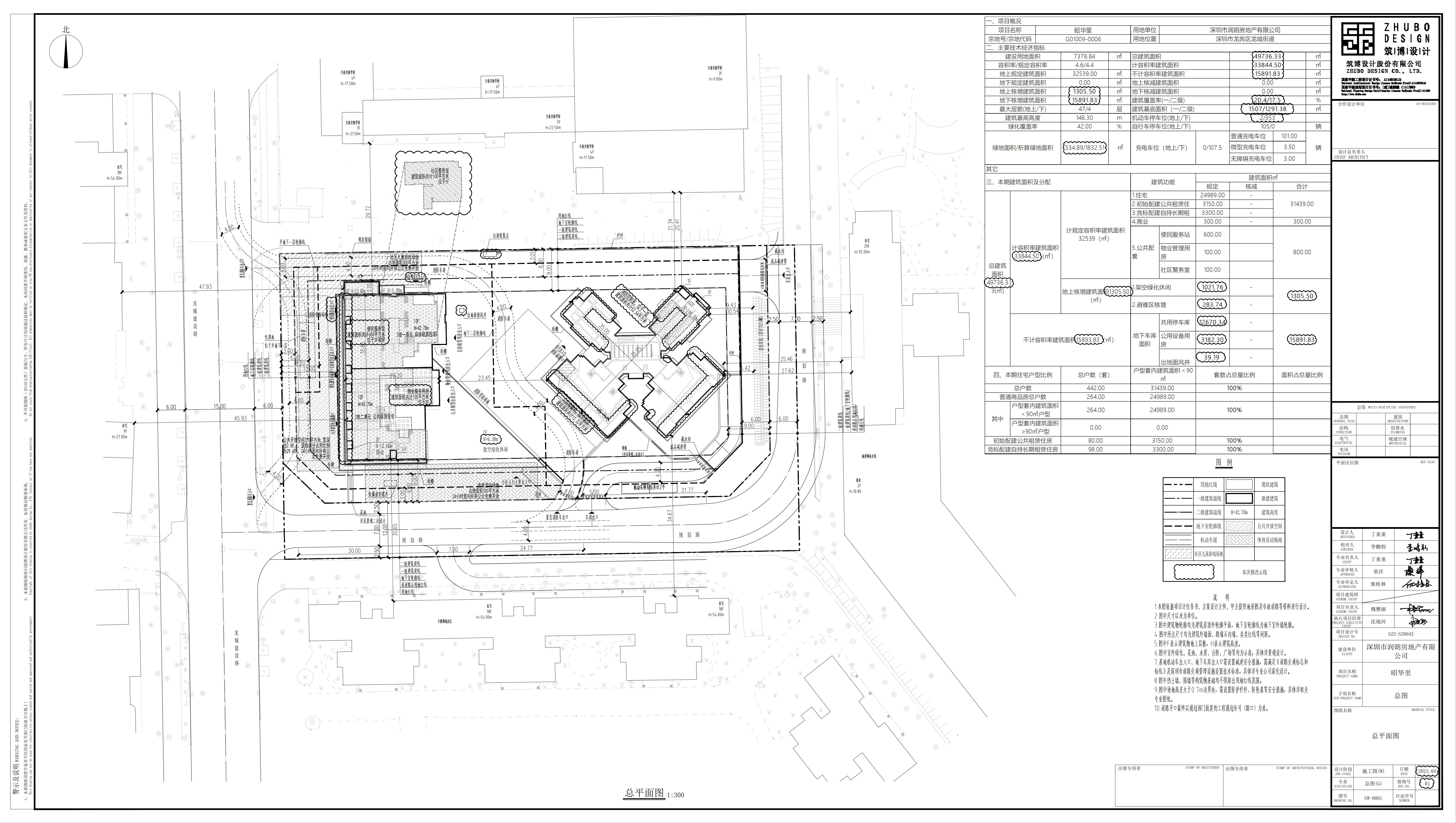
深圳市规划和自然资源局龙岗管理局关于昭华里项目变更工程规划许可证事宜的公示

信息来源:深圳市规划和自然资源局 信息提供日期:2023-05-18 09:00 【字体: 视力保护色:

  深圳市润朗房地产有限公司申请昭华里项目变更建设工程规划许可证和施工图纸修改。昭华里项目位于龙城街道G01009-0006号宗地,于2023年1月10日取得《建设工程规划许可证》(深规划资源建许字LG-2023-0006号)。本次涉及变更建设工程规划许可证相关内容及总平面图修改,主要内容为(详情如附图云线所示):

  1) 南侧主入口架空绿化休闲建筑高度由6.00米调整为6.30米;

  2) 取消架空绿化休闲铝板雨棚开洞;

  3) 主入口水景轮廓调整;

  4) 1栋屋顶构架调整;

  5) 1栋屋顶人防报警间面积由原来的12.90平方米调整为12.22平方米;

  6) 1栋一层消防控制室面积由原来的66.36平方米调整为53.54平方米;

  7) 位于2栋一单元的便民服务站和警务室平面位置调整,出入口调整。一层和二层便民服务站公配轮廓范围线调整;一层社区警务室公配轮廓范围线调整;二层物业服务用房公配轮廓范围线调整;

  8) 2栋一层商业轮廓调整;

  9) 2栋一单元东侧出地面排风井和垃圾收集点位置调整;

  10) 变更深规划资源建许字LG-2023-0006号《建设工程规划许可证》中相关指标(具体指标详见总平面图主要经济指标表)。

  本次修改内容符合《建设用地规划许可证》(地字第440307202200207号)和《土地使用权出让合同书》(深地合字〔2022〕2275号)要求。

  现根据《中华人民共和国城乡规划法》相关规定予以公示,公示期为10个工作日(2023年5月18日至2023年5月31日)。本公示自发布之日起在项目现场(地址:龙岗区龙城街道建设路项目现场)、深圳市规划和自然资源局门户网站(http://pnr.sz.gov.cn)及深圳市规划和自然资源局龙岗管理局一楼大厅和网站(地址:龙岗区中心城行政路2号建设大厦,网址:http://pnr.sz.gov.cn/lg/)同时公示。公示期间,如对该项目上述变更内容有异议,请使用真实姓名及有效联系方式通过书面形式与深圳市规划和自然资源局龙岗管理局联系(邮寄地址:龙岗区中心城行政路2号建设大厦11楼,备注:昭华里公示意见),公示期满无异议,将按规定办理相关手续。

  联系人:周工,电话:(0755)28916910。

  特此公示。

  附件:1.修改前总平面图

  2.修改后总平面图

深圳市规划和自然资源局龙岗管理局

2023年5月18日

触碰右侧展开