通知公告

您现在的位置 首页 > 政务公开 > 政府信息公开 > 通知公告

深圳市规划和自然资源局龙岗管理局关于变更深规划资源建许字LG-2020-0004号《建设工程规划许可证》的公示

信息来源:深圳市规划和自然资源局 信息提供日期:2021-04-22 09:00 【字体: 视力保护色:

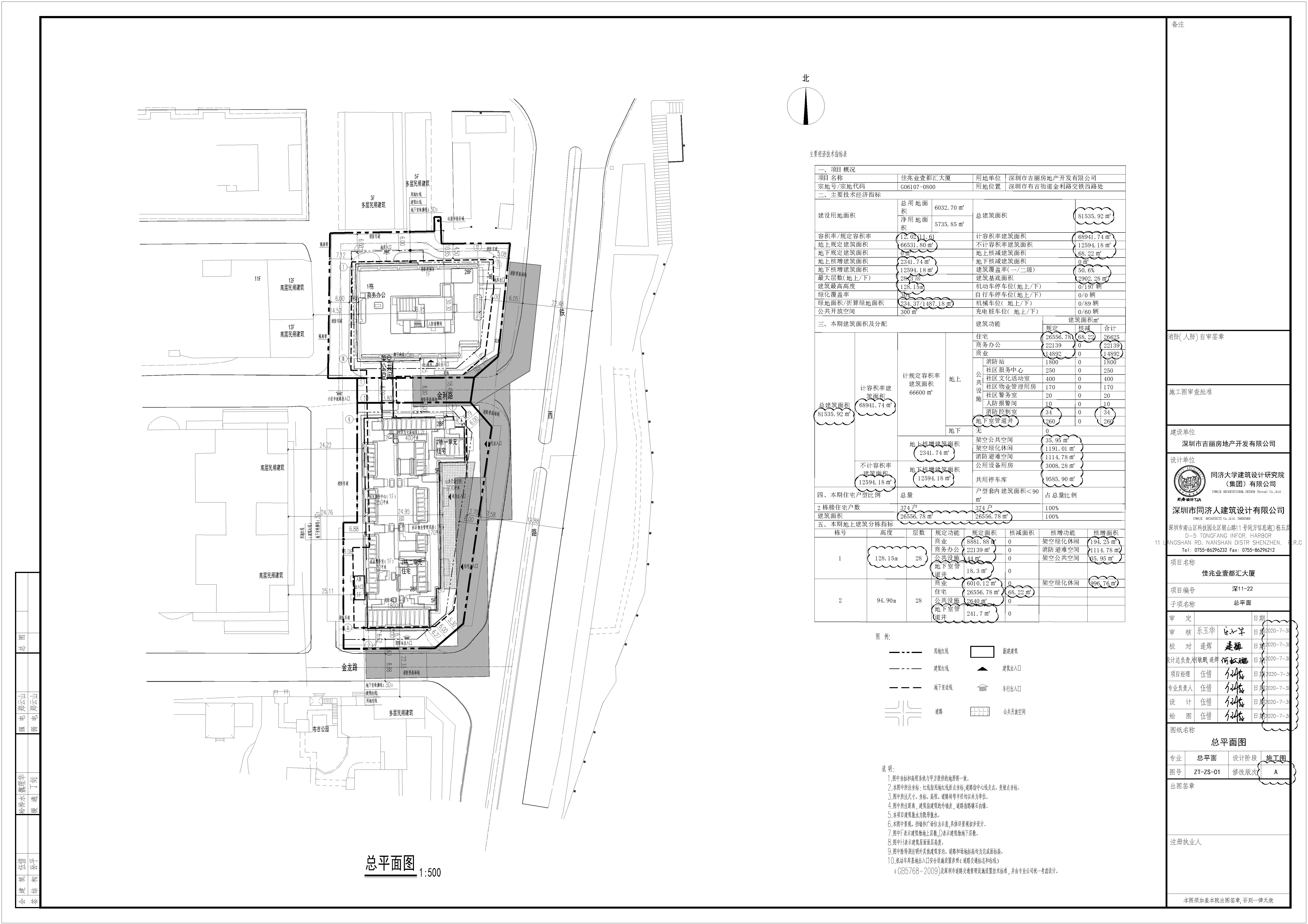
  深圳市吉丽房地产开发有限公司申请变更深规划资源建许字LG-2020-0004号《建设工程规划许可证》,项目用地位于布吉街道布吉社区,宗地号为G06107-0800,于2020年3月取得深规土建许字LG-2018-0020号《建设工程规划许可证》。本次变更主要内容如下:

  一、佳兆业壹都汇大厦1栋楼原商业第8层取消,整栋楼由29层修改为28层;管道井尺寸及位置、结构柱及剪力墙截面尺寸、外窗尺寸及分隔局部修改,门尺寸及位置、墙体尺寸及位置局部修改,12轴处构造柱尺寸由300MM改为250MM,部分墙体因设置消火栓,厚度由200MM改为300MM;因楼梯消防排烟要求,增加消防固定窗及吊兜;屋面层风机房、人防报警间位置及尺寸修改,电梯机房尺寸修改,增加加压送风机房及水泵房雨蓬。

  二、2栋楼1层~5层1/7轴至8轴交D轴至G轴处墙体向内移动850mm;1/7轴至8轴交C轴至D轴处墙体向内移动1050mm;1/7轴至8轴交B轴至C轴处墙体向内移动2350mm。调整局部柱截面尺寸。外幕墙增加分隔,外门开启及位置局部调整。消防站平面功能布局、内部隔墙、井道、门窗尺寸及位置修改。部分管道井位置及尺寸修改,局部分隔墙体尺寸及位置修改。2层~5层5轴交D轴附近LTS2-4处增加防火卷帘。调整局部柱截面尺寸,调整局部风机房、风井的位置及尺寸,管道井位置局部修改。7层~9层平面图、10层~28层平面图中调整住宅外立面部分卧室凸窗的形式和尺寸;调整外轮廓装饰构件的尺寸。2B-12轴交2B-J轴合用前室附近增加花池。局部管道井位置及尺寸修改。局部户型内部卫生间及厨房尺寸修改,调整局部剪力墙的尺寸。屋面层平面图中,调整局部风机房,风井,室外楼梯的位置及尺寸;调整外轮廓装饰构件以及局部剪力墙的尺寸。调整局部门窗的尺寸及位置。补充核心筒处屋顶平面图。 

  三、地下室12轴交N轴处地下室外墙边界点沿外墙方向移动800mm。调整局部结构柱及剪力墙截面尺寸,同时地下室外墙厚度修改。1-1轴至1-2轴交S轴至T轴处结构柱向1-2轴方向移动1000mm。修改储油间、部分管道井、风井及设备房尺寸及位置,隔墙相应修改。部分停车位位置及样式修改。部分设备房、防火门、防火卷帘、人防墙位置及尺寸修改,优化设计。地下一层标高由-4.800调整为-5.100。

  四、总图(总平面图、一层总平面及竖向布置图、消防总平面图):调整坐标系为大地坐标系,根据1栋、2栋楼修改,总图相应调整,总平面图中面积指标修正。

  五、共用图修改面积指标及工程概况,修改节能措施及防水部分说明,修改电梯参数表内电梯数据。

  六、本次修改涉及图纸图号、出图日期等,详见图纸云线圈注部分。修改后的各项规划指标等仍符合《建设用地规划许可证》《土地使用权出让合同书》及相关文件的规划要求。

  根据《中华人民共和国行政许可法》第四十七条及《中华人民共和国城乡规划法》第五十条的规定,现对该项目总平面图修改予以公示。公示期10个工作日(自2021年4月22日起至2021年5月7日止)。公示期间,如对该项目总平面图修改有任何意见和建议,请使用真实姓名及联系方式以书面形式反馈至深圳市规划和自然资源局龙岗管理局(地址:深圳市龙岗区中心城行政路2号建设大厦1105室)。公示期满如无异议,将按规定办理相关手续。

  本公示自发布之日起,在深圳市规划和自然资源局网站(http://pnr.sz.gov.cn)、龙岗管理局一楼大厅及项目现场同时进行展示。

  特此公示。

  附件:1.原报建总平面图

  2.修改后总平面图

深圳市规划和自然资源局龙岗管理局

2021年4月22日

  (联系人:刘工,联系电话:0755-28906020,传真:0755-28920300)

触碰右侧展开