通知公告

您现在的位置 首页 > 政务公开 > 政府信息公开 > 通知公告

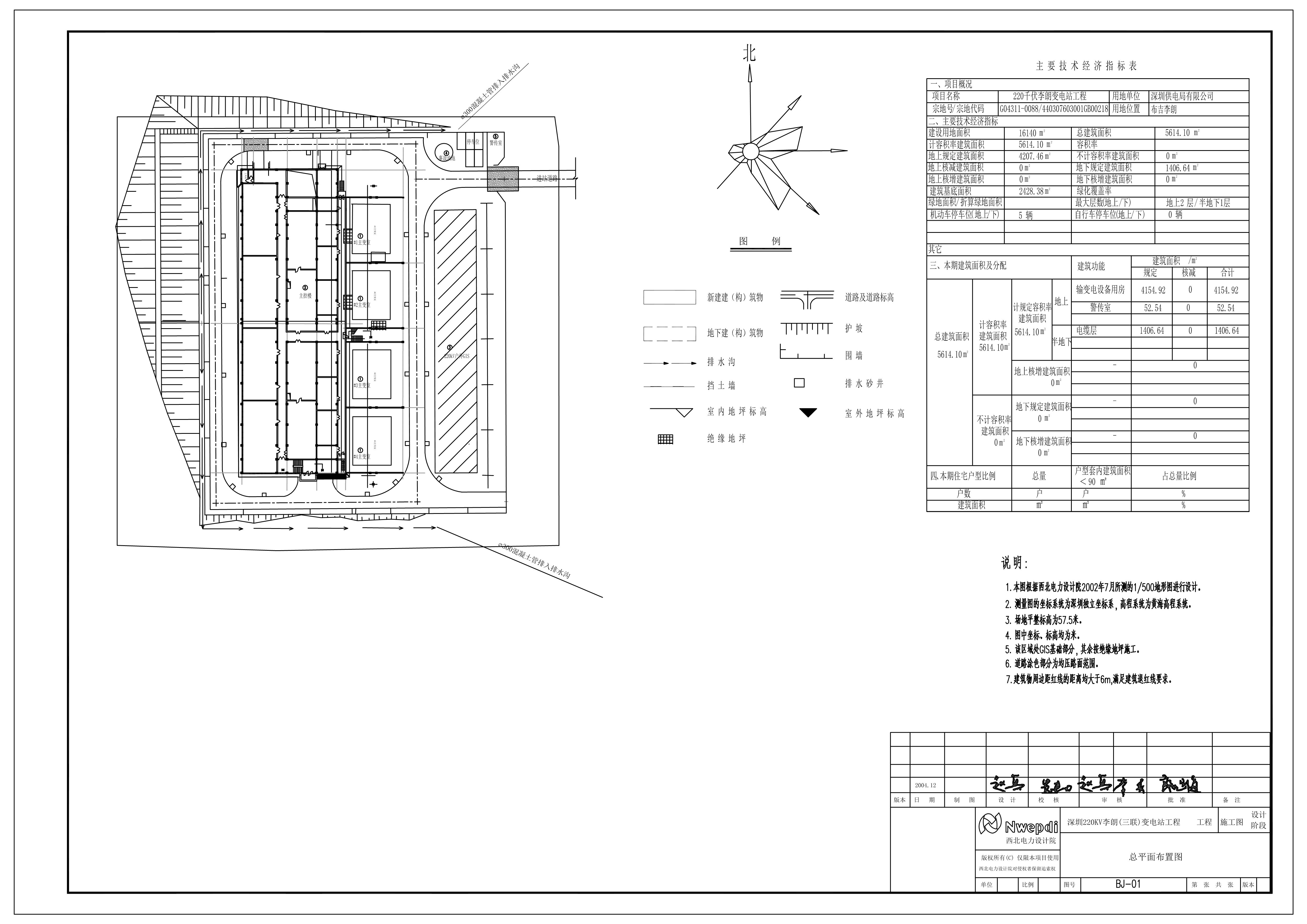
深圳市规划和自然资源局龙岗管理局关于220KV李朗变电站项目总平面图的通告

信息来源:深圳市规划和自然资源局 信息提供日期:2020-11-27 09:00 【字体: 视力保护色:

  深圳供电局有限公司开发建设的220KV李朗变电站项目,宗地号:G04311-0088号,位于龙岗区南湾街道李朗社区,建设用地面积15944.4平方米,于2020年11月取得《深圳市建设工程规划许可证》(深规划资源建许字LG-2020-0084号)。

  依据《中华人民共和国城乡规划法》相关规定,现对220KV李朗变电站项目的总平面图予以公布。

  附件:项目总平面图

深圳市规划和自然资源局龙岗管理局

2020年11月27日

触碰右侧展开