通知公告

您现在的位置 首页 > 政务公开 > 政府信息公开 > 通知公告

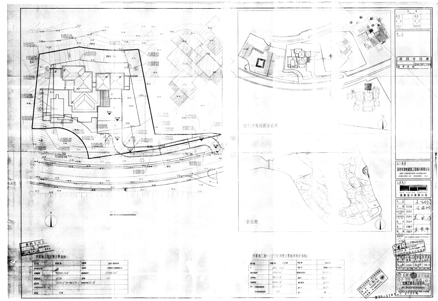
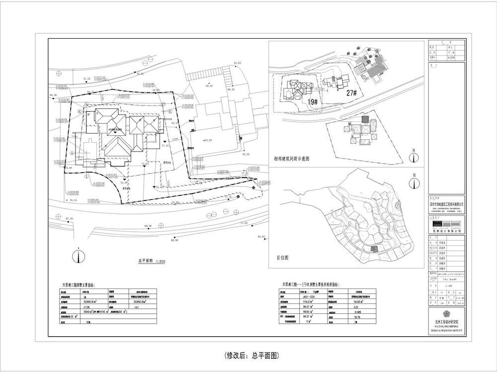
关于深圳市富春东方房地产开发有限公司天琴湾三期19#楼施工图修改的公告

信息来源:深圳市规划和国土资源委员会 信息提供日期:2010-08-02 16:17 【字体: 视力保护色:

  深圳市富春东方房地产开发有限公司(下称用地单位)的天琴湾三期项目位于盐田区大梅沙J402-0331号宗地,建设用地面积253990.39平方米,2006年取得《建设用地规划许可证》(07-2006-0024号)并签订土地合同《增补协议书》(20068106号),其中的19#楼已报建并取得《建设工程规划许可证》(BH-2007-0171号)。现用地单位申请对该栋楼施工图纸进行局部修改,内容包括对建筑单体位置、局部室外环境、建筑内部平面布局及相应的建筑外立面进行调整,修改前、后的总平面图及外立面图等详见项目现场及深圳市规划和国土资源委员会网站(http://www.szpl.gov.cn),修改内容仅限修改后图纸中云线圈注部分。修改后的各项规划指标等仍符合上述《建设用地规划许可证》、土地合同《增补协议书》中的相关规划要求。

  因上述施工图修改可能涉及相关利害关系人利益,根据《中华人民共和国行政许可法》第三十六条、第四十七条的规定,现对该项目施工图修改予以公告,公告期十五天(2010年7月31日至2010年8月14日)。在公告期内如有任何意见和建议,请用真实姓名以书面方式与深圳市规划和国土资源委员会滨海管理局联系。相关利害关系人享有要求听证的权利,在本公告结束之日起五日内提出听证申请的,我局将在二十日内组织听证。公告期满五日内(2010年8月19日18:00前)如无人提出申请,我局将按规定办理批准手续。

  联系人:陆工;电话:25556544;传真:25356213

  联系地址:盐田区海景路10号  邮编:518081

 

 

 

  深圳市规划和国土资源委员会滨海管理局

  二○一○年七月三十一日

 

触碰右侧展开