通知公告

您现在的位置 首页 > 政务公开 > 政府信息公开 > 通知公告

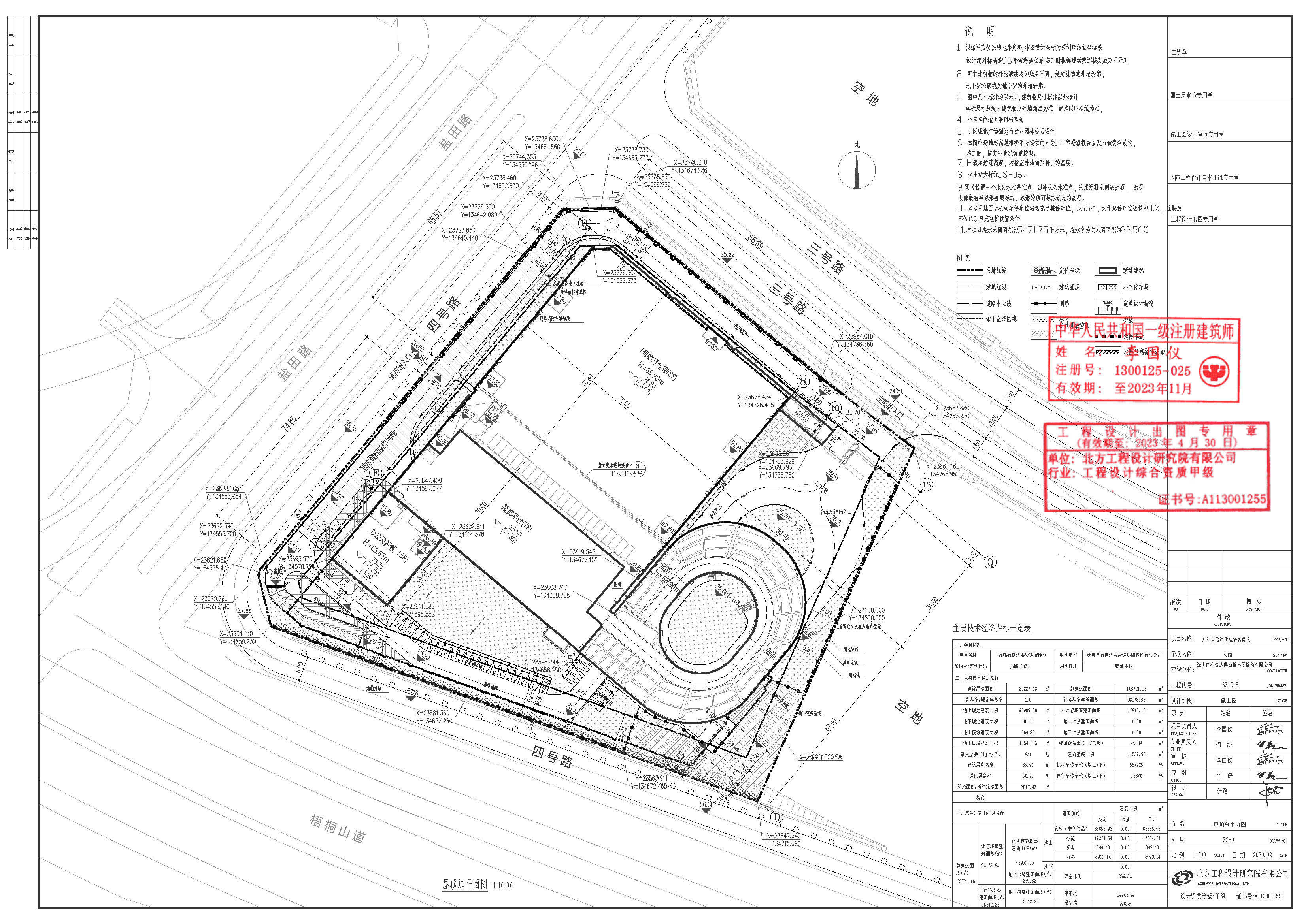
深圳市规划和自然资源局盐田管理局关于万纬有信达供应链智能仓项目总平面图修改公示的通告

信息来源:深圳市规划和自然资源局 信息提供日期:2023-03-14 16:32 【字体: 视力保护色:

  该项目位于盐田路与盐排高速交汇处以东,宗地号J306-0031,用地面积23227.43㎡,土地用途为物流用地,现用地单位结合现状测绘初步结果申请对原已批总平面图进行修改,主要修改内容为:

  调整经济技术指标表、盘道减少一层且建筑高度降低至57.9米、盘道中央增加设备安置平台、取消屋顶小车停车位等,具体修改内容详见修改后总平面图中云线圈注部分,修改后的各项规划指标等仍符合《建设用地规划许可证》《土地使用权出让合同书》的相关规划要求。

  根据《中华人民共和国行政许可法》第四十七条及《中华人民共和国城乡规划法》第五十条的规定,现对该项目图纸修改予以公示,公示期为10个工作日(2023年3月14日至2023年3月27日)。如对该项目屋顶总平面图修改有任何意见和建议,请在公示期内使用真实姓名及联系方式以书面形式反馈至深圳市规划和自然资源局盐田管理局(地址:盐田区海景路十号,邮编:518081)。相关利害关系人享有要求听证的权利,在公示期内提出听证申请的,深圳市规划和自然资源局盐田管理局将在二十日内组织听证。公示期满如无人提出申请,深圳市规划和自然资源局盐田管理局将按规定办理批准手续。

  本通告内容和修改前后的屋顶总平面图等具体内容同时在深圳市规划和自然资源局网站(http://pnr.sz.gov.cn)、深圳市规划和自然资源局盐田管理局门户网站(http://pnr.sz.gov.cn/yt/)及项目现场一并公示(联系人:吴工,联系电话:25361178)。

  附件:1.屋顶总平面图(修改前)

  2.屋顶总平面图(修改后)

深圳市规划和自然资源局盐田管理局

2023年3月14日

触碰右侧展开